Ferienwohnung

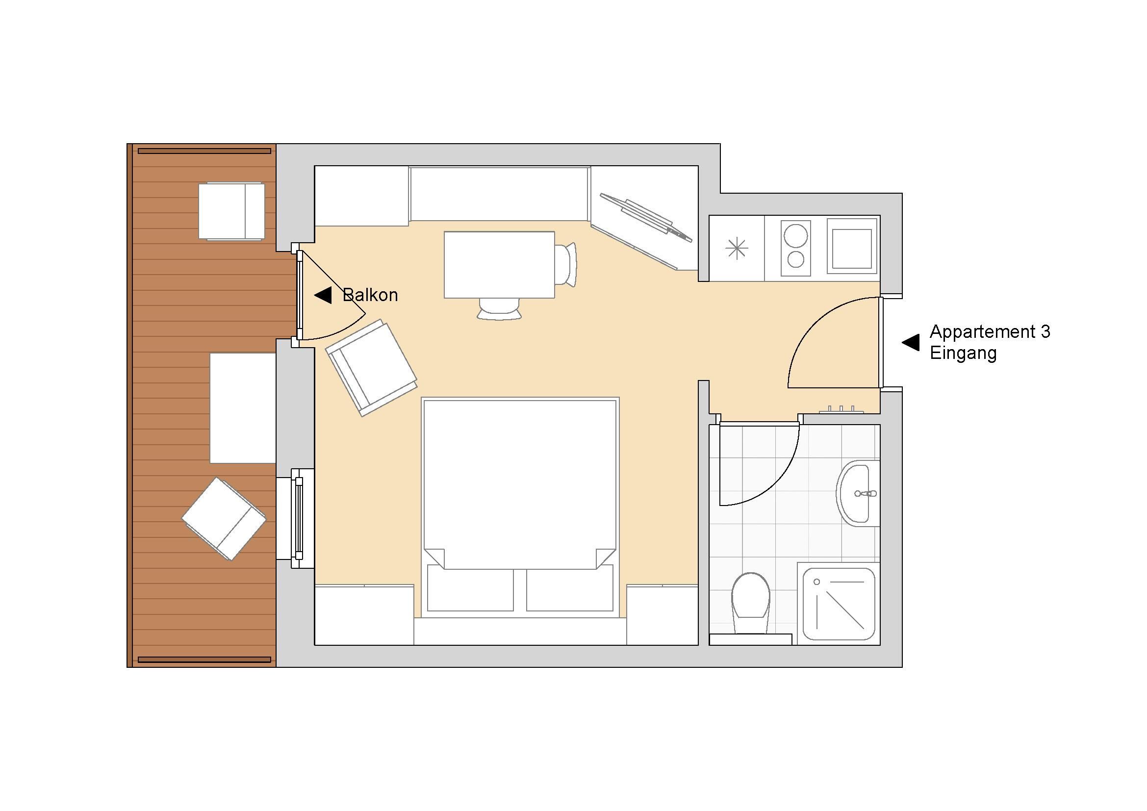
Haus Rappold - Appartement 3 mit Balkon

Dorfstraße 30, Mieders, Tirol - Tolle Lage - Karte anzeigen
4,6
Ausgezeichnet
basierend auf 1 Bewertung
Personen 2
Schlafzimmer 1
Wohnfläche 25 m²
Ferienwohnung
Mieders
Objekt-Nr.:
Merken
Teilen

  • Internet
  • TV
  • Balkon
  • Mikrowelle
  • Gefriermöglichkeit
  • Dusche
  • Safe

Beschreibung

Herzlich Willkommen in Mieders im Stubaital!

Mieders ist ideal für Ihren Sommerurlaub und auch durch ein vielfältiges Sportangebot im Winter ein beliebtes Urlaubsziel. 
In unserer Umgebung befinden sich die Serlesbahnen, welche im Winter hervorragende Langlaufloipen, Abfahrtspisten sowie eine herrliche Naturrodelbahn bis ins Tal bieten. Ob Langlaufen, Skifahren, Snowboarden, Rodeln oder Schneeschuhwandern - alle diese Sportarten sind in Mieders möglich.
Im Sommer lädt das Hochmoor zum Wandern ein. Außerdem ermöglichen eine Vielzahl an Wegen und Forststraßen das Mountainbiken. Mit der Sommerrodelbahn können Sie in rasanter Fahrt ins Tal gelangen. Ein weiteres Highlight ist der Pilgerweg zum Wallfahrtsort Maria Waldrast. Dieser Pilgerweg startet direkt beim Marien-Brunnen vor unserem Haus (siehe Foto). Das Schwimmbad Mieders oder das Badeparadies StuBay im Nachbarort Telfes sind ebenfalls einen Besuch wert. Mieders ist zudem ein idealer Ausgangspunkt, um schnell zu den Wander- und Skigebieten Schlick 2000 und Elferbahnen oder dem Stubaier Gletscher zu gelangen.
Auch ein Ausflug in die nahegelegene Landeshauptstadt Innsbruck, mit seinen vielen Sehenswürdigkeiten sowie Kultur- und Freizeitangeboten, ist sehr zu empfehlen.

Die zentrale, aber trotzdem ruhige Lage unseres Hauses ermöglicht es Ihnen, alle für den Urlaub wichtigen Einrichtungen wie Geschäfte, Restaurants, Ski-Lifte, Bushaltestellen usw. innerhalb weniger Minuten bequem zu Fuß zu erreichen. Des Weiteren befindet sich ein Lebensmittelgeschäft in unserem Haus (Spar-Markt). Außerdem können Sie im Nebengebäude einen Einblick in unsere sehr kleine Landwirtschaft gewinnen.

Appartement 3 mit Balkon (25 m²) für 1 bis 2 Personen verfügt über:
- einen Schlafraum mit Doppelbett, gemütlicher Sitzecke, SAT-TV, Radio, und Zimmersafe;
- eine Kleinküche mit Kochplatte, Kühlschrank, Spülbecken, Dunstabzug, Kaffeemaschine, Mikrowelle, Geschirr, Gläser, Besteck und Koch- und Spülutensilien;
- ein Bad mit Dusche, WC, Waschtisch, Haarfön, Kosmetikspiegel und Handtücher;
- einen Balkon mit Stühlen, Tisch und Sonnenschirm;
Kostenloses WLAN und ein kostenloser Privatparkplatz stehen Ihnen ebenfalls zur Verfügung. 

Gesamte Beschreibungweniger anzeigen

Ausstattung

Highlights
  • Blick auf die Berge
Leistungen
  • Brötchenservice
Allgemein
  • Wohn/Schlafraum kombi.
  • Sitzgruppe
  • Heizung
  • Balkon
  • Safe
Unterhaltung
  • Kabel/Sat
  • TV
  • Radio
  • Internet
Küche
  • Gefriermöglichkeit
  • Herd-Ceran, 4 Zonen
  • separate Küche
  • Dunstabzug
  • Küche (Pantry/Mini)
  • Toaster
  • Mikrowelle
  • Kühlschrank
  • Kaffeemaschine (Filter)
Bad/Sanitär
  • Haartrockner
  • Dusche
  • Badewanne/WC
  • Handtücher
Betten
  • Bettwäsche

Verfügbarkeit prüfen

Wählen Sie Ihren Reisezeitraum aus, um den Preis zu sehen!
>vorheriges Objekt
Jahresansicht
Jan 2026
Mo Di Mi Do Fr Sa So
      1 2 3 4
5 6 7 8 9 10 11
12 13 14 15 16 17 18
19 20 21 22 23 24 25
26 27 28 29 30 31  
             
Feb 2026
Mo Di Mi Do Fr Sa So
            1
2 3 4 5 6 7 8
9 10 11 12 13 14 15
16 17 18 19 20 21 22
23 24 25 26 27 28  
             
Mär 2026
Mo Di Mi Do Fr Sa So
            1
2 3 4 5 6 7 8
9 10 11 12 13 14 15
16 17 18 19 20 21 22
23 24 25 26 27 28 29
30 31          

Lage • Haus Rappold - Appartement 3 mit Balkon

Dorfstraße 30, Mieders, Tirol
Reisende, die sich die Unterkunft Haus Rappold - Appartement 3 mit Balkon angesehen haben, haben diese Unterkünfte gebucht
Merken
90 m²
Ferienwohnung
6 Pers.
2 Schlafz.
Mieders
Tirol
4,8 Ausgezeichnet 5 Bewertungen
Merken
50 m²
Bauernhof
2 Pers.
1 Schlafz.
Mieders
Tirol
Merken
90 m²
Ferienwohnung
7 Pers.
3 Schlafz.
Mieders
Tirol
5,0 Ausgezeichnet 1 Bewertung
Merken
Ferienwohnung
3 Pers.
Mieders
Tirol
4,8 Ausgezeichnet 62 Bewertungen