Vorheriges Objekt Zurück zur Liste Nächstes Objekt
Ferienwohnung

Ferienwohnung Haus Helvetia, (Samnaun-Compatsch).

Compatsch Strasse, Samnaun, Graubünden - Tolle Lage - Karte anzeigen
5,0
Ausgezeichnet
basierend auf 2 Bewertungen
Personen 2
Schlafzimmer 1
Ferienwohnung
Samnaun
Objekt-Nr.:
Merken
Teilen

  • Internet
  • Balkon
  • Haustiere nicht erlaubt
  • Nichtraucher

Beschreibung

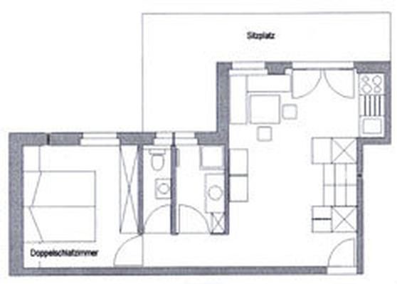
Unser Haus liegt am Dorfrand von Samnaun-Compatsch. Gemütliche und helle Appartements. Skiabfahrt bis ins Dorf. Ski-, Orts- und Postbus in unmittelbarer Nähe. Im Sommer idealer Ausgangspunkt für zahlreiche Wanderungen und Biketouren. Wenige Meter bis ins Alpenquell-Erlebnisbad.

Das Appartement für 2 Pers. bietet Ihnen einen grossen Wohnraum mit Eckback/Tisch und Sofa, Kochnische mit Backofen, DU/WC, ein Schlafraum, Balkon, Sat-TV, Internet-Anschluss, und einen Zimmersafe. Das App. ist hell und gemütlich eingerichtet. Parkplatz direkt beim Haus. Endreinigung CHF: 65.00.

Konditionen und Extras
Endreinigungen: CHF 50.00 - 100.00
Kurtaxe:
Sommersaison: CHF 4.00 all inclusive
Wintersaison:CHF 4.00

inkl. Frottéewäsche/Küchenwäsche/WLAN

Ausstattung
1 Schlafraum, Babybett, Backofen, Balkon, Haustiere nicht erlaubt, Internetverbindung, Kaffeemaschine, Kinderbett, Kochnische, Küche, Küchenwäsche, Kühlschrank, Nichtraucherzimmer-/wohnung, Raclette-Set, Tisch- und Küchenwäsche, Töpfe Pfannen Geschirr, TV, Wäschetrockner im Haus, Waschmaschine im Haus, WiFi, Zimmersafe

Badezimmer
Badewäsche vorhanden

Dienstleistungen
Brötchenservice, Fahrradabstellraum, Familienfreundlich, Haustiere nicht erlaubt, Parkplatz, Skikeller/-abstellraum, Zollfrei einkaufen

Stockwerk
Souterrain

Unterkunftstyp
Ferienwohnung

Belegung
1-2 Personen
1-2 Erwachsene
0-1 Kinder (0-17 Jahr(e))

Gesamte Beschreibungweniger anzeigen

Ausstattung

Leistungen
  • Brötchenservice
Allgemein
  • Haustiere nicht erlaubt
  • Nichtraucher
  • Balkon
Unterhaltung
  • Internet
  • Kabel/Sat
Küche
  • Backofen
  • Kaffeemaschine (Filter)
  • Kühlschrank

Verfügbarkeit prüfen

Wählen Sie Ihren Reisezeitraum aus, um den Preis zu sehen!
Mär 2026
Mo Di Mi Do Fr Sa So
            1
2 3 4 5 6 7 8
9 10 11 12 13 14 15
16 17 18 19 20 21 22
23 24 25 26 27 28 29
30 31          
Apr 2026
Mo Di Mi Do Fr Sa So
    1 2 3 4 5
6 7 8 9 10 11 12
13 14 15 16 17 18 19
20 21 22 23 24 25 26
27 28 29 30      
             
Mai 2026
Mo Di Mi Do Fr Sa So
        1 2 3
4 5 6 7 8 9 10
11 12 13 14 15 16 17
18 19 20 21 22 23 24
25 26 27 28 29 30 31
             

Lage • Ferienwohnung Haus Helvetia, (Samnaun-Compatsch).

Compatsch Strasse, Samnaun, Graubünden
Reisende, die sich die Unterkunft Ferienwohnung Haus Helvetia, (Samnaun-Compatsch). angesehen haben, haben diese Unterkünfte gebucht
Merken
Ferienwohnung
2 Pers.
1 Schlafz.
Samnaun
Graubünden
4,8 Ausgezeichnet 6 Bewertungen
Merken
45 m²
Ferienwohnung
2 Pers.
1 Schlafz.
Samnaun
Graubünden
Merken
Ferienwohnung
2 Pers.
1 Schlafz.
Samnaun
Graubünden
Merken
72 m²
Ferienwohnung
6 Pers.
3 Schlafz.
Samnaun
Graubünden
4,4 Sehr Gut 1 Bewertung