Vorheriges Objekt Zurück zur Liste Nächstes Objekt
Ferienwohnung

Biala - BioBergün - Biala - BioBergün .1

, Bergün/Bravuogn, Graubünden - Tolle Lage - Karte anzeigen
0,0
basierend auf 0 Bewertungen
Personen 5
Badezimmer 1
Wohnfläche 90 m²
Ferienwohnung
Bergün/Bravuogn
Objekt-Nr.:
Merken
Teilen

  • Internet
  • TV
  • Grillmöglichkeit
  • Geschirrspüler
  • Gefriermöglichkeit
  • Dusche
  • Waschmaschine
  • Haustier erlaubt
  • Nichtraucher

Beschreibung



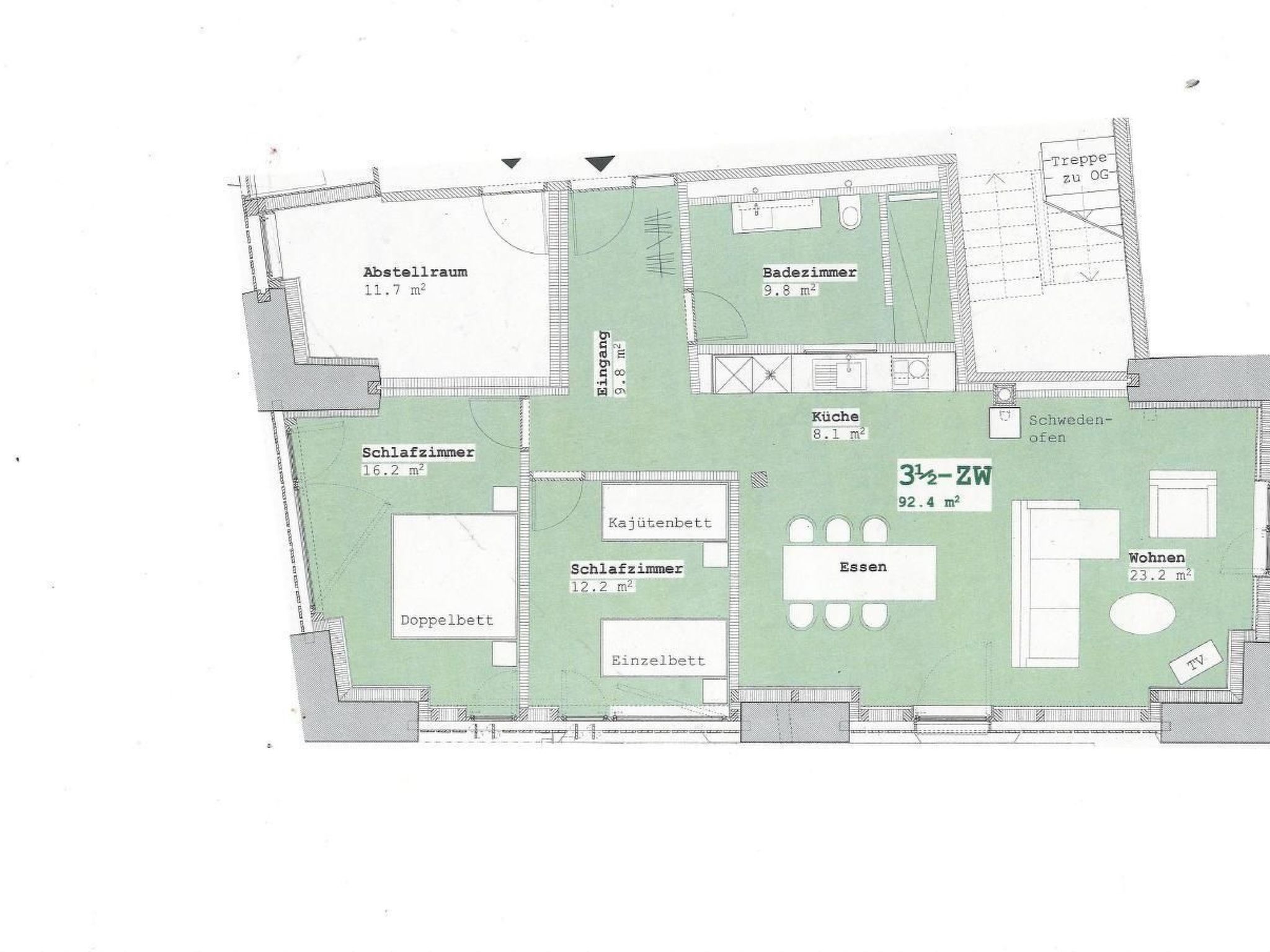
Die neue grosszügige Ferienwohnung (90m2) befindet sich im Erdgeschoss und bietet Platz für 2-5 eignet sich besonders für Familien. Für Kleinkinder gibt es einen Hochstuhl und ein Kinderbettt. Sportgeräte (Ski, Schlitten, Fahrrad) und Kinderwagen finden im Abstellraum im EG einen sicheren Platz. In der neuen modernen Küche gibt es einen Geschirrspüler. Fernseher und Internet sind vorhanden. Die Ferienwohnung befindet sich mitten im Dorf und alle Freizeitanlagen wie Skilifte, Bergbahn, Museum, Freibad sind gut zu Fuss erreichbar. Unser Milchviehbetrieb liegt 5min von der Wohnung entfernt. Sie dürfen jeden Abend (Okt-Mai) gratis frische Milch im Stall abholen. Unser Hofladen vor dem Haus bietet Ihnen eine vielzahl feiner Köstlichkeiten vom Hof. Ob Wanderferien im Sommer oder im goldenen Herbst, Skiferien im beschaulichen Bergdorf, Skitourenerlebnisse ab von den Massen, oder Ferien auf dem Bauernhof bei uns sind sie richtig und herzlich willkommen! Sportmöglichkeiten in der Umgebung: Angeln, Bergsteigen, Eislaufen, Golfplatz, Jagdmöglichkeit, Klettern, Mountainbiking, Radtouren, Rodeln, Ski (alpin), Ski (Langlauf), Tennis Basisinformationen - Erlaubte Haustiere: 2 - erlaubte Hundegröße: groß (über 60 cm) - Etage, auf der sich das Objekt befindet: EG - Nichtraucherunterkunft - Schlafzimmeranzahl: 2 - Badezimmeranzahl: 1 Top Merkmale - WLAN - Klimaanlage: keine - Private PKW-Stellplätze insgesamt für diese Unterkunft: 1 - ㄴ davon private Außen­stellplätze: 1 Schlafen Schlafzimmer 1 - Doppelbett (1,80m Breite) - Schlafzimmer abdunkelbar Schlafzimmer 3 - Einzelbett - Etagenbett - Schlafzimmer abdunkelbar Badezimmer Badezimmer 1 - Dusche - Waschbecken - Toilette - Föhn Kochen/Wohnen - Kaffeemaschine: Espressokanne - Kühl-/Gefrierschrank: Kühlschrank - Herd: Herd - Dunstabzugshaube - Backofen - Wasserkocher - Spülmaschine - Anzahl Esstische: 1 - Gesamtzahl Sitzplätze: 6 - Anzahl Wohnzimmer: 1 Entertainment - Fernseher: TV, Sat.-TV Hauswirtschaft - Waschmaschine: zur gemeinschaftlichen Nutzung im Gebäude Außenbereich - Grill: Grill Umgebung - Lebensmittelhandel: 500 m - Cafés/Restaurants: 500 m - Bahnhof: 1,0 km - Fahrrad-Verleih: 1 m - Berg-/Seilbahn: 500 m Besonderheiten - Anglerfreundlich

Gesamte Beschreibungweniger anzeigen

Ausstattung

Allgemein
  • Grillmöglichkeit
  • Nichtraucher
  • Waschmaschine
  • Haustier erlaubt
Unterhaltung
  • Internet
  • TV
Küche
  • Backofen
  • Gefriermöglichkeit
  • Geschirrspüler
Bad/Sanitär
  • Dusche

Verfügbarkeit prüfen

Wählen Sie Ihren Reisezeitraum aus, um den Preis zu sehen!
>vorheriges Objekt
Jahresansicht
Mai 2026
Mo Di Mi Do Fr Sa So
        1 2 3
4 5 6 7 8 9 10
11 12 13 14 15 16 17
18 19 20 21 22 23 24
25 26 27 28 29 30 31
             
Jun 2026
Mo Di Mi Do Fr Sa So
1 2 3 4 5 6 7
8 9 10 11 12 13 14
15 16 17 18 19 20 21
22 23 24 25 26 27 28
29 30          
             
Jul 2026
Mo Di Mi Do Fr Sa So
    1 2 3 4 5
6 7 8 9 10 11 12
13 14 15 16 17 18 19
20 21 22 23 24 25 26
27 28 29 30 31    
             

Lage • Biala - BioBergün - Biala - BioBergün .1

, Bergün/Bravuogn, Graubünden
Reisende, die sich die Unterkunft Biala - BioBergün - Biala - BioBergün .1 angesehen haben, haben diese Unterkünfte gebucht
Merken
71 m²
Ferienwohnung
5 Pers.
2 Schlafz.
Bergün/Bravuogn
Graubünden
4,2 Sehr Gut 5 Bewertungen
Merken
100 m²
Ferienwohnung
7 Pers.
Bergün/Bravuogn
Graubünden
Merken
57 m²
Ferienwohnung
5 Pers.
1 Schlafz.
Bergün/Bravuogn
Graubünden
Merken
90 m²
Ferienwohnung
5 Pers.
2 Schlafz.
Bergün/Bravuogn
Graubünden
4,7 Ausgezeichnet 14 Bewertungen