Vorheriges Objekt Zurück zur Liste Nächstes Objekt
Ferienwohnung

Gästehaus Apfelbacher - Ferienwohnung Biber

Eppenschlager Str. 3, Spiegelau, Niederbayern - Tolle Lage - Karte anzeigen
0,0
basierend auf 0 Bewertungen
Personen 2
Ferienwohnung
Spiegelau
Objekt-Nr.:
Merken
Teilen

  • Internet
  • TV
  • Terrasse
  • Grillmöglichkeit
  • Mikrowelle
  • Geschirrspüler
  • Gefriermöglichkeit
  • Nichtraucher
  • Safe

Beschreibung

Unsere Ferienanlage liegt ca. 2 km vom Ortszentrum entfernt im Ortsteil Beiwald.




Im Haupthaus befinden sich 4 Ferienwohnungen für 2 bis 4 Personen.




Das Ferienhaus im Blockhausstil bietet Platz für 2 Personen und ist ca. 20 m vom Haupthaus entfernt.











                                                                    


Konditionen

Stornierungen bis zu 30 Tage vor Anreise sind kostenfrei. Bei Stornierungen bis zu 14 Tage vor Anreise werden 50% berechnet. Bei späteren Stornierungen werden 100% des Übernachtungspreises fällig.


Die Anreise ist zwischen 14:00 Uhr und 22:00 Uhr möglich.
Die Abreise ist zwischen 06:00 Uhr und 10:00 Uhr möglich.
Die Schlüsselübergabe erfolgt persönlich vor Ort.
Tourismusabgabe: Erwachsene: 2,50 €, Kinder (6-18 Jahre): 1,25 €, Kinder unter 6 Jahren: beitragsfrei

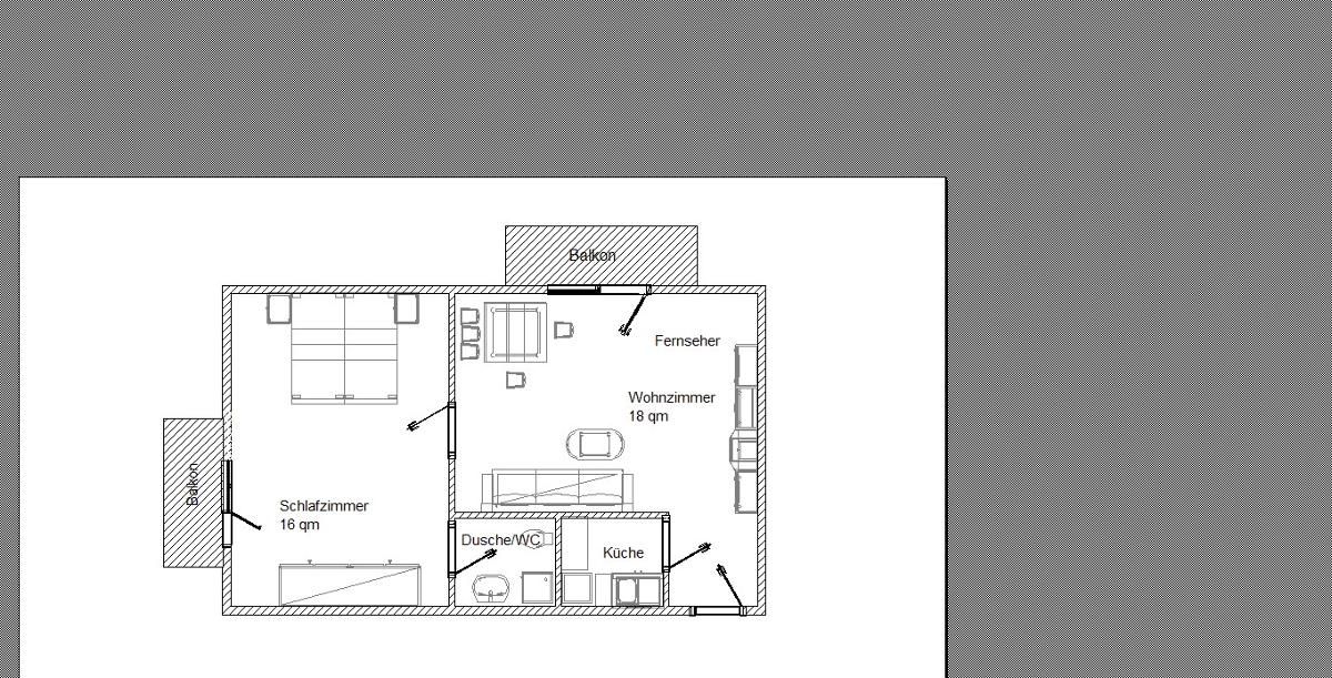
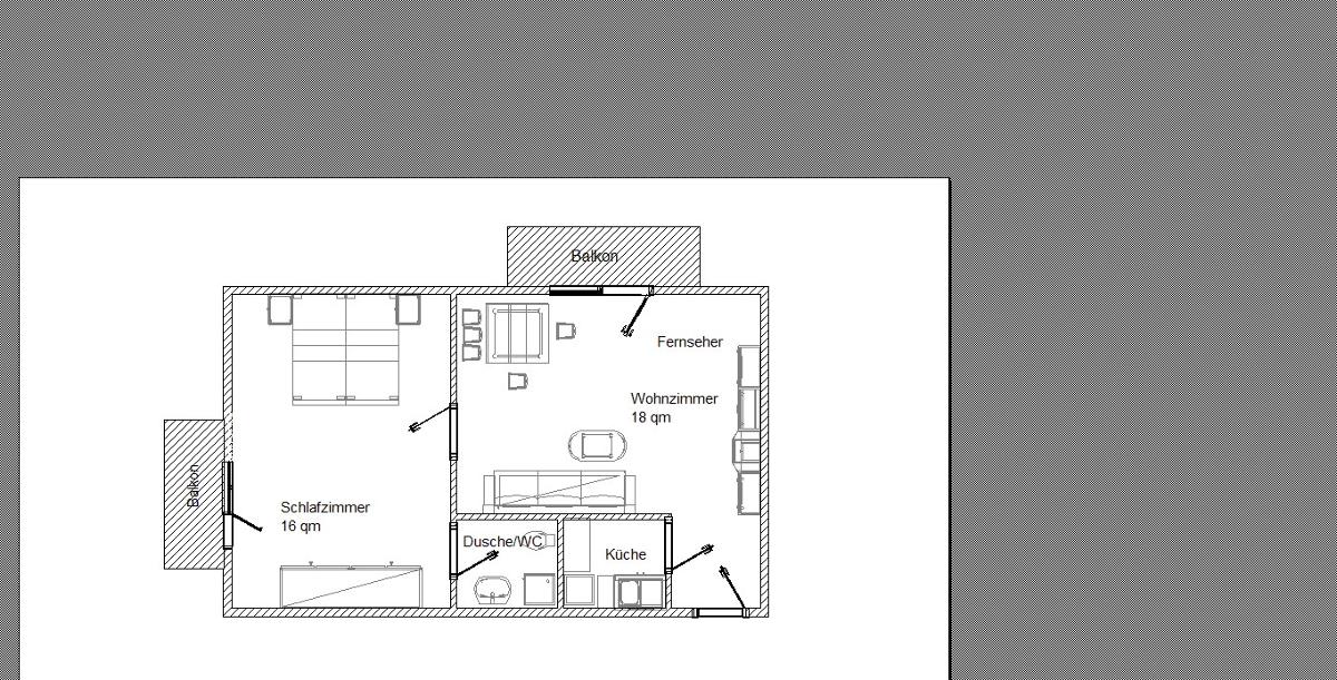
Die Ferienwohnung Biber hat ca. 35 qm und liegt ebenerdig zum Haupteingang des Hauses zur Nord-/Westseite.


Sie bietet eine kleine, gut ausgestattete Küche, Wohnzimmer mit Essecke und Sat/TV sowie Schlafzimmer. Dusche/WC mit Fön und Kosmetikspiegel.



WLAN zur kostenlosen Nutzung vorhanden.



Auf den Balkon finden Sie Erholung und Entspannung.



Für Hunde geeignet (10€/Tag).

Zahlung bei Anreise in bar oder mit EC-Karte möglich.




Konditionen

1 Haustier ist erlaubt, gegen eine Gebühr von 10€ pro Tier/ Nacht

Gesamte Beschreibungweniger anzeigen

Ausstattung

Leistungen
  • Hochstuhl
Allgemein
  • Rauchmelder
  • Heizung
  • Hund auf Anfrage
  • Safe
  • Grillmöglichkeit
  • Nichtraucher
  • Terrasse
Unterhaltung
  • TV
  • Radio
  • Internet
Küche
  • separate Küche
  • Geschirrspüler
  • Toaster
  • Mikrowelle
  • Kaffeemaschine (Filter)
  • Gefriermöglichkeit
  • Backofen
Bad/Sanitär
  • Dusche/WC

Verfügbarkeit prüfen

Wählen Sie Ihren Reisezeitraum aus, um den Preis zu sehen!
>vorheriges Objekt
Jahresansicht
Mär 2026
Mo Di Mi Do Fr Sa So
            1
2 3 4 5 6 7 8
9 10 11 12 13 14 15
16 17 18 19 20 21 22
23 24 25 26 27 28 29
30 31          
Apr 2026
Mo Di Mi Do Fr Sa So
    1 2 3 4 5
6 7 8 9 10 11 12
13 14 15 16 17 18 19
20 21 22 23 24 25 26
27 28 29 30      
             
Mai 2026
Mo Di Mi Do Fr Sa So
        1 2 3
4 5 6 7 8 9 10
11 12 13 14 15 16 17
18 19 20 21 22 23 24
25 26 27 28 29 30 31
             

Lage • Gästehaus Apfelbacher - Ferienwohnung Biber

Eppenschlager Str. 3, Spiegelau, Niederbayern
Reisende, die sich die Unterkunft Gästehaus Apfelbacher - Ferienwohnung Biber angesehen haben, haben diese Unterkünfte gebucht
Merken
Ferienwohnung
4 Pers.
Spiegelau
Niederbayern
Merken
Ferienwohnung
4 Pers.
1 Schlafz.
Spiegelau
Niederbayern
4,6 Ausgezeichnet 1 Bewertung
Merken
Ferienwohnung
6 Pers.
2 Schlafz.
Spiegelau
Niederbayern
4,6 Ausgezeichnet 1 Bewertung
Merken
Ferienwohnung
4 Pers.
2 Schlafz.
Spiegelau
Niederbayern