Ferienwohnung

Appartements Hochegg - Appartement 2/Fewo, Dusche, WC, 2 Schlafräume

Vorberg 169, Schladming, Steiermark - Tolle Lage - Karte anzeigen
4,5
Ausgezeichnet
basierend auf 4 Bewertungen
Personen 6
Schlafzimmer 2
Wohnfläche 64 m²
Ferienwohnung
Schladming
Objekt-Nr.:
Merken
Teilen

  • Internet
  • TV
  • Terrasse
  • Balkon
  • Grillmöglichkeit
  • Mikrowelle
  • Geschirrspüler
  • Gefriermöglichkeit
  • Sauna
  • Haustiere nicht erlaubt
  • Nichtraucher
  • Safe

Beschreibung

Willkommen im Appartementhaus Hochegg
Urlaub voller Entspannung inmitten unserer herrlichen Natur. Nur 250 m bis zur Skibushaltestelle der 4 Berge Skischaukel, Dachstein Gletscher nur wenige Autominuten entfernt, Sonnenaufgangsfrühstück am Dachstein, Aussichtsplattform Skywalk, Eispalast, mehrere zum Teil beleuchtete Rodelbahnen, Sommerrodelbahn, Pferdeschlittenfahrten, zahlreiche Wanderwege und Langlaufloipen in unmittelbarer Nähe, Mountainbikewege, Lauf- und Nordic Walking Wege, Bergsteigen und Klettern, Forest Park Indoor Klettern-Hochseilgarten, kein Autoverkehr.
Wir bieten Ihnen beim Appartementhaus Hochegg eine schöne Grillmöglichkeit, eine große Liegewiese, eine wunderbare Terrasse mit Sitzgarnitur.
All das können Sie bei uns, in der wunderschönen und abwechslungsreichen Region Schladming-Dachstein ausüben und erleben.

Unsere Nichtraucher-Appartement für 1 bis 6 Personen
http://www.hochegg-schladming.at/images/appartements_hochegg1/tour2.html

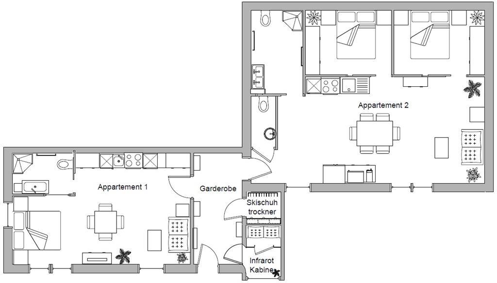
Appartement 2 (für 1 - 6 Personen)
mit Dusche und WC
Radio, Flachbildfernseher mit SAT
W-Lan kostenlos
Sofa mit Bettfunktion
Komplett eingerichtete Küche mit Kühlschrank, Cerankochfeld, Mikrowelle und Geschirrspüler
Geschirr, Kaffeepadmaschine,...
Hand- und Badetücher, Bett- und Küchenwäsche

Gesamte Beschreibungweniger anzeigen

Ausstattung

Leistungen
  • Brötchenservice
Allgemein
  • Terrasse
  • Schlafsofa
  • Sitzgruppe
  • Heizung
  • Safe
  • Balkon
  • Klimaanlage
  • Nichtraucher
  • Haustiere nicht erlaubt
  • Grillmöglichkeit
Unterhaltung
  • Kabel/Sat
  • TV
  • Radio
  • Internet
  • CD-Player
Küche
  • separate Küche
  • Dunstabzug
  • Geschirrspüler
  • Mikrowelle
  • Kühlschrank
  • Kaffeemaschine (Filter)
  • Gefriermöglichkeit
  • Backofen
  • Herd-Ceran, 4 Zonen
Bad/Sanitär
  • Haartrockner
  • Handtücher
  • Dusche/WC
Wellness
  • Sauna
Betten
  • Doppelbett
  • Bettwäsche

Verfügbarkeit prüfen

Wählen Sie Ihren Reisezeitraum aus, um den Preis zu sehen!
>vorheriges Objekt
Jahresansicht
Feb 2026
Mo Di Mi Do Fr Sa So
            1
2 3 4 5 6 7 8
9 10 11 12 13 14 15
16 17 18 19 20 21 22
23 24 25 26 27 28  
             
Mär 2026
Mo Di Mi Do Fr Sa So
            1
2 3 4 5 6 7 8
9 10 11 12 13 14 15
16 17 18 19 20 21 22
23 24 25 26 27 28 29
30 31          
Apr 2026
Mo Di Mi Do Fr Sa So
    1 2 3 4 5
6 7 8 9 10 11 12
13 14 15 16 17 18 19
20 21 22 23 24 25 26
27 28 29 30      
             

Lage • Appartements Hochegg - Appartement 2/Fewo, Dusche, WC, 2 Schlafräume

Vorberg 169, Schladming, Steiermark
Reisende, die sich die Unterkunft Appartements Hochegg - Appartement 2/Fewo, Dusche, WC, 2 Schlafräume angesehen haben, haben diese Unterkünfte gebucht
Merken
70 m²
Ferienwohnung
6 Pers.
2 Schlafz.
Schladming
Steiermark
5,0 Ausgezeichnet 5 Bewertungen
Merken
67 m²
Ferienwohnung
6 Pers.
2 Schlafz.
Schladming
Steiermark
Merken
48 m²
Ferienwohnung
6 Pers.
1 Schlafz.
Schladming
Steiermark
4,8 Ausgezeichnet 2 Bewertungen
Sun Lodge Schladming by Schladming-Appartements - TYP 2E
Merken
72 m²
Ferienwohnung
6 Pers.
2 Schlafz.
Schladming
Steiermark
4,5 Ausgezeichnet 14 Bewertungen