Sonstiges

Gästehaus Watzmannblick - Ferienwohnung 4 Watzmannkind für 1-4 Pers., ca. 80 m², 2 SZ, Wohnkü., 2 Bäder, 2 Bk

Gebirgsjägerstraße 46, Bischofswiesen, Oberbayern - Tolle Lage - Karte anzeigen
4,9
Ausgezeichnet
basierend auf 2 Bewertungen
Personen 4
Sonstiges
Bischofswiesen
Objekt-Nr.:
Merken
Teilen

  • Internet
  • TV
  • Balkon
  • Mikrowelle
  • Geschirrspüler
  • Gefriermöglichkeit
  • Dusche
  • Haustiere nicht erlaubt
  • Nichtraucher
  • Allergikerfreundlich
  • Safe

Beschreibung

Ankommen - Herzlich Willkommen sein - sich wohlfühlen - erholen - die Seele baumeln lassen - im schönen Berchtesgadener Land und im Gästehaus Watzmannbick in Bischofswiesen, Ortsteil Strub.

Sie erwartet im Herzen des Berchtesgadener Talkessels ein sagenumwobenes Gebirgspanorama und herzliche Gastfreundschaft. Unsere gemütlichen und komfortablen Ferienwohnungen, die mit viel Liebe geschmackvoll im bayerischen Stil vom ortsansässigen Schreinermeister designt und individuell eingerichtet wurden, werden Sie begeistern. LCD-TV/DVD Kombination, Stereo-Anlage, Safe zum Selbstprogrammieren, ausführliche Infomappe tragen zu Ihrem Wohlfühl-Urlaub bei. Wir bieten unseren Gästen eine zentrale, doch ruhige Lage im Ferien- und Urlaubsdreieck Berchtesgaden - Bad Reichenhall und der Kulturstadt Salzburg.

 


Konditionen

Die genannten Preise sind zzgl. Kurbeitrag in Höhe von 3,10 Euro für Erwachsene, 1,55 Euro für Kinder/Jugendliche vom 7. bis zum vollendeten 16. Lebensjahr und 0,00 Euro für Kinder von 0 - 6 Jahren pro Person und Aufenthaltstag (Änderungen vorbehalten).
Es wird kein Frühstück angeboten.

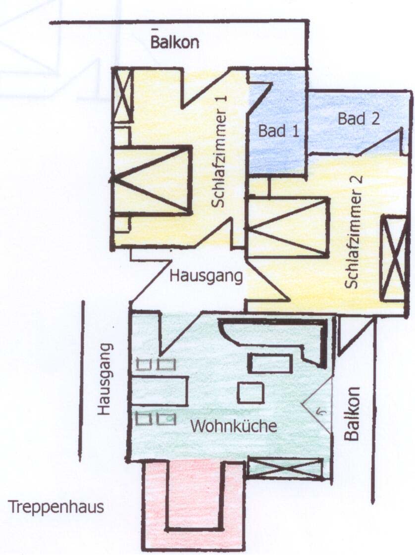
Unsere Ferienwohnung WatzmannKind 4 mit ca. 80 qm liegt im 1. Stock und bietet für 2 - 4 Personen viel Platz.

Sie werden sich in den getrennten Schlafzimmern, den 2 Bädern und der geräumingen Wohnküche sehr wohl fühlen.

Die Ferienwohnung besteht aus:



• 2 separaten Schlafzimmern

• 2 Bädern

• einer Wohnküche mit einer Holz-Einbauküche vom renommiertem Schreiner in heimischen Bio-Fichten- und Nussholz gefertigt und ausgestattet mit hochwertigen Geräten, wie Backofen, Ceranfeld, Kühlschrank, Mikrowelle, Geschirrspülmaschine, kleinen praktischen Küchenhelfern wie einen Messerblock, Handrührgerät, Eierkocher, Wasserkocher, Kaffeemaschine, Toaster usw.
und
einem Wohnraum mit
einem Panasonic Fernseher und einer Panasonic Stereoanlage
einer gemütlichen Sitzecke
einer Informationsmappe und Gesellschaftsspielen
ein eigener Safe zum Selbstprogrammieren
ein Ganzkörperspiegel

• zwei schönen Balkonen.


Die Betten sind frisch bezogen, Handtücher und Geschirrtücher sind vorhanden und für die ersten Tage Ihres Urlaubs finden Sie eine kleines Starterset mit Toilettenpapier, Kaffeefiltern, Mülltüten und Geschirrspülmittel in Ihrer Wohnung vor.

Wir beherbergen Sie gerne!

Freuen Sie sich drauf - wir freuen uns auf Sie!

 

Gesamte Beschreibungweniger anzeigen

Ausstattung

Highlights
  • Blick auf die Berge
Allgemein
  • Haustiere nicht erlaubt
  • Nichtraucher
  • Allergikerfreundlich
  • Balkon
  • Safe
  • Heizung
  • Rauchmelder
Unterhaltung
  • Kabel/Sat
  • TV
  • Radio
  • CD-Player
  • Internet
  • TV-Flachbild
  • DVD-Player
Küche
  • Gefriermöglichkeit
  • Herd-Ceran, 4 Zonen
  • separate Küche
  • Geschirrspüler
  • Toaster
  • Mikrowelle
  • Kühlschrank
  • Kaffeemaschine (Filter)
  • Backofen
Bad/Sanitär
  • Haartrockner
  • Dusche
  • Handtücher
Betten
  • Bettwäsche

Verfügbarkeit prüfen

Wählen Sie Ihren Reisezeitraum aus, um den Preis zu sehen!
>vorheriges Objekt
Jahresansicht
Jan 2026
Mo Di Mi Do Fr Sa So
      1 2 3 4
5 6 7 8 9 10 11
12 13 14 15 16 17 18
19 20 21 22 23 24 25
26 27 28 29 30 31  
             
Feb 2026
Mo Di Mi Do Fr Sa So
            1
2 3 4 5 6 7 8
9 10 11 12 13 14 15
16 17 18 19 20 21 22
23 24 25 26 27 28  
             
Mär 2026
Mo Di Mi Do Fr Sa So
            1
2 3 4 5 6 7 8
9 10 11 12 13 14 15
16 17 18 19 20 21 22
23 24 25 26 27 28 29
30 31          

Lage • Gästehaus Watzmannblick - Ferienwohnung 4 Watzmannkind für 1-4 Pers., ca. 80 m², 2 SZ, Wohnkü., 2 Bäder, 2 Bk

Gebirgsjägerstraße 46, Bischofswiesen, Oberbayern
In der Umgebung
  • Bahnhof 2,0 km
  • Stadt-/Ortsmitte 2,5 km
  • Haltestelle 100 m
  • Skilift 6,5 km
  • Bergbahn 7,9 km
  • Langlaufloipe 5,8 km
Reisende, die sich die Unterkunft Gästehaus Watzmannblick - Ferienwohnung 4 Watzmannkind für 1-4 Pers., ca. 80 m², 2 SZ, Wohnkü., 2 Bäder, 2 Bk angesehen haben, haben diese Unterkünfte gebucht
Merken
Ferienwohnung
4 Pers.
Bischofswiesen
Oberbayern
Merken
Bauernhof
6 Pers.
Bischofswiesen
Oberbayern
5,0 Ausgezeichnet 1 Bewertung
Merken
Bauernhof
4 Pers.
Bischofswiesen
Oberbayern
4,7 Ausgezeichnet 3 Bewertungen
Merken
Ferienwohnung
8 Pers.
Bischofswiesen
Oberbayern