Vorheriges Objekt Zurück zur Liste Nächstes Objekt
Ferienwohnung

APPARTEMENT GABBIE - Appartement Gabbie Top 1

Katzenburgweg 523, Schladming, Steiermark - Tolle Lage - Karte anzeigen
0,0
basierend auf 0 Bewertungen
Personen 4
Schlafzimmer 2
Badezimmer 1
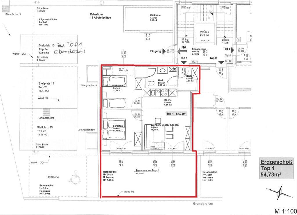
Wohnfläche 55 m²
Ferienwohnung
Schladming
Objekt-Nr.:
Merken
Teilen

  • Internet
  • TV
  • Terrasse
  • Geschirrspüler
  • Gefriermöglichkeit
  • Dusche
  • Haustiere nicht erlaubt
  • Nichtraucher

Beschreibung

ZEIT ZUM RELAXEN - UND DOCH MITTENDRIN!
Sie wünschen eine sonnige und ruhige Lage, es sollte aber dennoch sehr zentral sein, dann ist das Appartement Gabbie genau das richtige Feriendomizil in Schladming. Eine moderne und traditionelle Innenausstattung sorgen für sehr viel Komfort und vermitteln zugleich Wärme und Gemütlichkeit. Geschätzt wird die ruhige Lage und die Nähe zum Stadtzentrum Schladming wo Sie zahlreichen Shops, Restaurants und Bars finden, sowie zur Planai Talstation. Diese erreichen Sie in ca. 8 Gehminuten. Das Auto werden Sie also nicht benötigen. Auch im Sommer ist das Appartement einen Besuch wert. Wanderwege, Rad- und Laufstrecken, eine Wasserbucht an der Enns und noch viele weitere Freizeitmöglichkeiten liegen direkt vor dem Haus. Eine schöne Sonnenterrasse rundet das Angebot ab. Supermärkte, Hallenbad oder Freibad befinden sich in unmittelbarer Nähe. Geboten wird ein Appartement, welches für 4 Personen auf 55 m² Platz bietet. Eine großzügige Wohnküche, 2 separate Schlafzimmer, Badezimmer mit Dusche /WC sowie eine große Sonnenterrasse machen Ihren Urlaub unvergesslich. Fahrradabstellplatz, reservierter Carport Parkplatz, Internetanschlussmöglichkeit sowie ein Ski Safe gegenüber der Planai Talstation runden das Angebot ab.

Lage: zentral in Schladming, 8 Gehminuten zur Planai
Maximale Personenanzahl: 4
Appartementanzahl: 1
Highlight: Große Sonnenterrasse, Gratis Skidepot!

Gabbie
Für 2 – 4 Personen, 55m² Wohnfläche, EG
- 3-Raum Appartement mit Wohnküche
- 2 Schlafzimmer 1x Doppelbett 1x zwei Einzelbetten
- 1 Bad mit Dusche und WC
Highlights:
- 30m² Sonnenterrasse
- 1 kostenfreier Parkplatz direkt vor dem Haus
- Kostenfreies WLAN
- Abstellraum für Fahrräder
- Reserviertes Ski-depot direkt an der Planai Gondelstation mit Schuhtrockner

Gesamte Beschreibungweniger anzeigen

Ausstattung

Leistungen
  • Brötchenservice
  • Hochstuhl
Allgemein
  • Heizung
  • Sitzgruppe
  • Terrasse
  • Nichtraucher
  • Fahrstuhl/Aufzug
  • Haustiere nicht erlaubt
Unterhaltung
  • Kabel/Sat
  • TV
  • Radio
  • Internet
Küche
  • Herd-Ceran, 4 Zonen
  • Dunstabzug
  • Geschirrspüler
  • Toaster
  • Kühlschrank
  • Gefriermöglichkeit
  • Backofen
  • separate Küche
Bad/Sanitär
  • Dusche/WC
  • Handtücher
  • Badewanne/WC
  • Dusche
  • Haartrockner
Betten
  • Einzelbett
  • Doppelbett
  • Bettwäsche

Verfügbarkeit prüfen

Wählen Sie Ihren Reisezeitraum aus, um den Preis zu sehen!
>vorheriges Objekt
Jahresansicht
Mär 2026
Mo Di Mi Do Fr Sa So
            1
2 3 4 5 6 7 8
9 10 11 12 13 14 15
16 17 18 19 20 21 22
23 24 25 26 27 28 29
30 31          
Apr 2026
Mo Di Mi Do Fr Sa So
    1 2 3 4 5
6 7 8 9 10 11 12
13 14 15 16 17 18 19
20 21 22 23 24 25 26
27 28 29 30      
             
Mai 2026
Mo Di Mi Do Fr Sa So
        1 2 3
4 5 6 7 8 9 10
11 12 13 14 15 16 17
18 19 20 21 22 23 24
25 26 27 28 29 30 31
             

Lage • APPARTEMENT GABBIE - Appartement Gabbie Top 1

Katzenburgweg 523, Schladming, Steiermark
Reisende, die sich die Unterkunft APPARTEMENT GABBIE - Appartement Gabbie Top 1 angesehen haben, haben diese Unterkünfte gebucht
Merken
77 m²
Ferienwohnung
6 Pers.
2 Schlafz.
Schladming
Steiermark
4,5 Ausgezeichnet 14 Bewertungen
Merken
50 m²
Bauernhof
6 Pers.
2 Schlafz.
Schladming
Steiermark
Merken
48 m²
Ferienwohnung
4 Pers.
1 Schlafz.
Schladming
Steiermark
4,7 Ausgezeichnet 107 Bewertungen
Merken
73 m²
Ferienwohnung
4 Pers.
1 Schlafz.
Schladming
Steiermark
3,8 Sehr Gut 2 Bewertungen