Bauernhof

Pertl - Hansalagut - barrierefreie Ferienwohnung mit 3 Schlafzimmer, Ty

Neusess Moos 4, Mauterndorf, Salzburger Land - Tolle Lage - Karte anzeigen
3,6
Sehr Gut
basierend auf 1 Bewertung
Personen 7
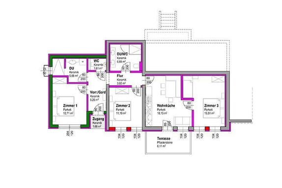
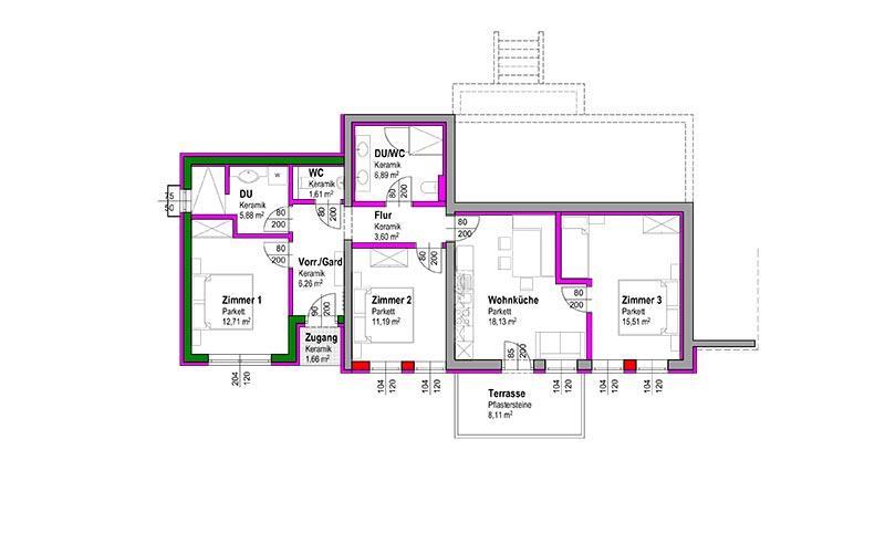
Schlafzimmer 3
Wohnfläche 85 m²
Bauernhof
Mauterndorf
Objekt-Nr.:
Merken
Teilen

  • Internet
  • TV
  • Terrasse
  • Balkon
  • Grillmöglichkeit
  • Mikrowelle
  • Geschirrspüler
  • Gefriermöglichkeit
  • Badewanne
  • Haustier erlaubt
  • Nichtraucher

Beschreibung

Unser spezialisierter barrierefreier und mit dem Sicherheitsgütesiegel ausgezeichnete 4 Blumen Baby und Kinder-Biobauernhof befindet sich am Ortsrand „mitten im Grünen“ (im Sommer) und mitten im Weissen im Winter von Mauterndorf (direkt an den romantischen Spazier- und Radwegen) an der Langlaufloipe an der eigenen Rodelbahn und in der Nähe von 4 großen Schigebieten - alle in einer Karte, im Sommer ringsum Gebirgsseen, „kinderleicht erreichbare Gipfel, oder anspruchsvolle 3000er laden alle zum Staunen ein - die 13 Seitentäler des Lungaues mit ihren unterschiedlichen Charakteren... warten auf Sie! Unsere Ferienwohnungen sind alle mit 2 oder 3 seperaten Schlafzimmern, sowie vollst ausgestatteten Wohnküchen eingerichtet! Kostenlos: Eier und Milch

Neu renovierte Ferienwohnung, ebenerdig und barrierefrei bis zu 7 Personen, mit 3 getrennte Schlafräume 2x Doppelzimmer, 1x Dreibettzimmer 2x Dusche und 2x WC - barrierefrei, eine große Wohnküche mit ausziehbarer Couch und Küche mit E-Herd Geschirrspüler, Kühlschrank, Mikrowelle Sat-TV und Terrasse

Gesamte Beschreibungweniger anzeigen

Ausstattung

Leistungen
  • Brötchenservice
  • Einkaufsservice
  • Hochstuhl
Allgemein
  • Haustier erlaubt
  • Trocknerraum – in der Anlage
  • Sitzgruppe
  • Heizung
  • Balkon
  • Terrasse
  • Nichtraucher
  • Grillmöglichkeit
Unterhaltung
  • Kabel/Sat
  • TV
  • Radio
  • Internet
Küche
  • separate Küche
  • Dunstabzug
  • Geschirrspüler
  • Mikrowelle
  • Kühlschrank
  • Kaffeemaschine (Filter)
  • Gefriermöglichkeit
Bad/Sanitär
  • Badewanne
  • Handtücher
  • Badewanne/WC
  • Dusche/WC
Betten
  • Bettwäsche

Verfügbarkeit prüfen

Wählen Sie Ihren Reisezeitraum aus, um den Preis zu sehen!
>vorheriges Objekt
Jahresansicht
Dez 2025
Mo Di Mi Do Fr Sa So
1 2 3 4 5 6 7
8 9 10 11 12 13 14
15 16 17 18 19 20 21
22 23 24 25 26 27 28
29 30 31        
             
Jan 2026
Mo Di Mi Do Fr Sa So
      1 2 3 4
5 6 7 8 9 10 11
12 13 14 15 16 17 18
19 20 21 22 23 24 25
26 27 28 29 30 31  
             
Feb 2026
Mo Di Mi Do Fr Sa So
            1
2 3 4 5 6 7 8
9 10 11 12 13 14 15
16 17 18 19 20 21 22
23 24 25 26 27 28  
             

Lage • Pertl - Hansalagut - barrierefreie Ferienwohnung mit 3 Schlafzimmer, Ty

Neusess Moos 4, Mauterndorf, Salzburger Land
Reisende, die sich die Unterkunft Pertl - Hansalagut - barrierefreie Ferienwohnung mit 3 Schlafzimmer, Ty angesehen haben, haben diese Unterkünfte gebucht
Merken
Ferienwohnung
7 Pers.
1 Schlafz.
Mauterndorf
Salzburger Land
5,0 Ausgezeichnet 8 Bewertungen
Merken
95 m²
Ferienpark
8 Pers.
1 Schlafz.
Mauterndorf
Salzburger Land
Merken
85 m²
Bauernhof
7 Pers.
1 Schlafz.
Mauterndorf
Salzburger Land
Merken
98 m²
Ferienwohnung
8 Pers.
2 Schlafz.
Mauterndorf
Salzburger Land
5,0 Ausgezeichnet 1 Bewertung