Ferienhaus

Georg Mayer Haus - Wohnung 5

Hauptstraße, Oberstdorf, Allgäu - Tolle Lage - Karte anzeigen
4,5
Ausgezeichnet
basierend auf 1 Bewertung
Personen 4
Schlafzimmer 2
Badezimmer 1
Wohnfläche 62 m²
Ferienhaus
Oberstdorf
Objekt-Nr.:
Merken
Teilen

  • Internet
  • TV
  • Balkon
  • Badewanne
  • Haustiere nicht erlaubt
  • Nichtraucher
  • Safe

Beschreibung

Haus im Zentrum Oberstdorfs mit 8 individuellen, gemütlichen Ferienwohnungen von 49 m² - 102 m² für 1-6 Personen.

Alle Wohnungen mit Balkonen bzw. Terrasse, jede Wohnung einzigartig, traditionelle Elemente kombiniert mit modernem Design, gut ausgestattete Küchen mit Spülmaschinen, z.T. Induktion, Betten mit Bandscheibenmatratzen, Bäder mit Wanne (außer in W2) und separater Dusche.

Bettwäsche, Hand- und Geschirrtücher, Haartrockner, diverse Verbrauchsartikel vorhanden, SAT-TV, Stereoanlage und WLAN.

Sauna, Infrarot, Kicker, Tischtennis, Fitness-, Fahrrad-/Skiraum zur freien Nutzung, historischer Gewölbekeller buchbar

Zwei Stellplätze am Haus und vier Garagenplätze mit Fahrzeugbeschränkungen gegen Gebühr.

Kleine Auswahl an Leihfahrrädern und zwei Riesenkettcars nach Verfügbarkeit

Im Sommer können die Oberstdorf/Kleinwalsertal Bergbahnen und Tennisplätze vor Ort kostenlos hinzugebucht werden.

Fußgängerzone, autofrei erreichbar, Nähe Bahnhof, ÖPNV, Läden, Gastronomie

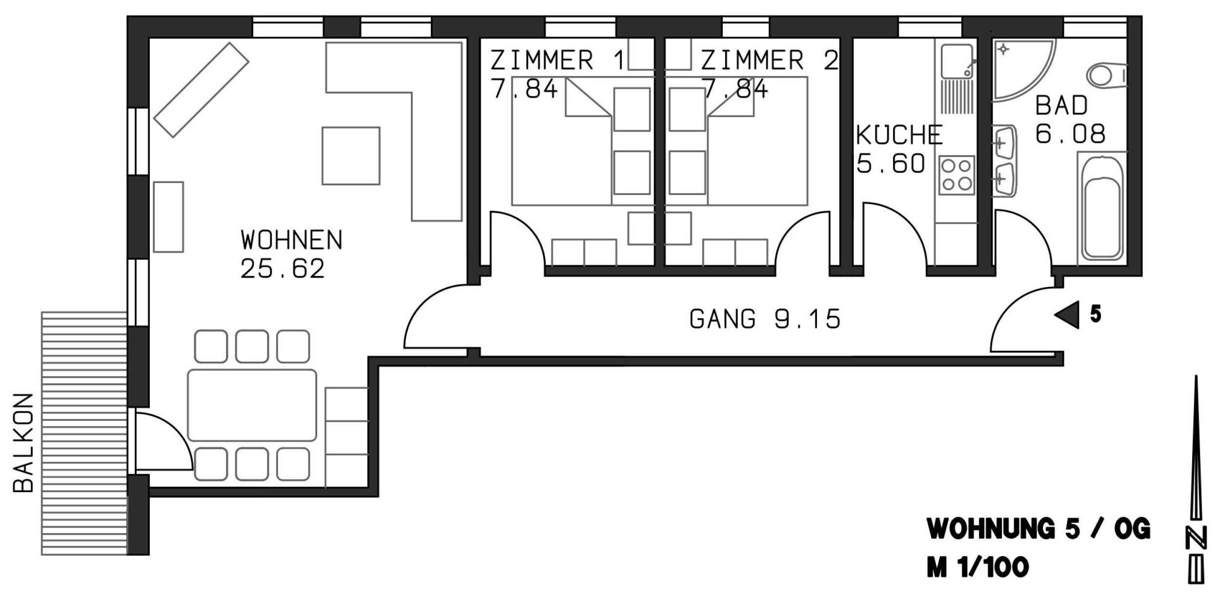
3 Zimmer, Küche, Bad Ferienwohnung mit 62 m² für 1 bis 4 Personen, großes Wohnzimmer, zwei Schlafzimmer mit Doppelbetten, separate Küche, 1. Obergeschoß, Westbalkon, Kinderzustellbett und Hochstuhl auf anfrage möglich

Gesamte Beschreibungweniger anzeigen

Ausstattung

Allgemein
  • Haustiere nicht erlaubt
  • Nichtraucher
  • Balkon
  • Safe
Unterhaltung
  • Internet
  • TV
  • Kabel/Sat
Küche
  • Kühlschrank
Bad/Sanitär
  • Badewanne
  • Dusche/WC
  • Badewanne/WC
Betten
  • Reise-/Kinderbett

Verfügbarkeit prüfen

Wählen Sie Ihren Reisezeitraum aus, um den Preis zu sehen!
>vorheriges Objekt
Jahresansicht
Jan 2026
Mo Di Mi Do Fr Sa So
      1 2 3 4
5 6 7 8 9 10 11
12 13 14 15 16 17 18
19 20 21 22 23 24 25
26 27 28 29 30 31  
             
Feb 2026
Mo Di Mi Do Fr Sa So
            1
2 3 4 5 6 7 8
9 10 11 12 13 14 15
16 17 18 19 20 21 22
23 24 25 26 27 28  
             
Mär 2026
Mo Di Mi Do Fr Sa So
            1
2 3 4 5 6 7 8
9 10 11 12 13 14 15
16 17 18 19 20 21 22
23 24 25 26 27 28 29
30 31          

Lage • Georg Mayer Haus - Wohnung 5

Hauptstraße, Oberstdorf, Allgäu
Reisende, die sich die Unterkunft Georg Mayer Haus - Wohnung 5 angesehen haben, haben diese Unterkünfte gebucht
Merken
45 m²
Ferienwohnung
6 Pers.
1 Schlafz.
Oberstdorf
Allgäu
3,2 Gut 21 Bewertungen
Merken
30 m²
Ferienwohnung
4 Pers.
Oberstdorf
Allgäu
Merken
64 m²
Ferienwohnung
6 Pers.
2 Schlafz.
Oberstdorf
Allgäu
Merken
62 m²
Ferienhaus
4 Pers.
2 Schlafz.
Oberstdorf
Allgäu
4,5 Ausgezeichnet 1 Bewertung