Ferienwohnung

Haus Sandeck - Wohnung Zugspitze

Zugspitzstraße 7, Ehrwald, Tirol - Tolle Lage - Karte anzeigen
0,0
basierend auf 0 Bewertungen
Personen 5
Schlafzimmer 2
Badezimmer 1
Wohnfläche 70 m²
Ferienwohnung
Ehrwald
Objekt-Nr.:
Merken
Teilen

  • Internet
  • TV
  • Terrasse
  • Mikrowelle
  • Geschirrspüler
  • Gefriermöglichkeit
  • Haustiere nicht erlaubt
  • Nichtraucher

Beschreibung

HERZLICHE WILLKOMMEN IM HAUS SANDECK!

Erleben Sie Ihren Urlaub in wunderschöner Natur umgeben von der einzigartigen Bergkulisse der Tiroler Zugspitz Arena.

Unsere Ferienwohnungen bieten die idealen Voraussetzungen dafür, dass Sie Ihren Urlaub von der ersten Minute an genießen können und die schönsten Tage im Jahr zum Erlebnis werden.

Wählen Sie zwischen vier gemütlich eingerichteten Ferienwohnungen in verschiedenen Größen für 1 - 5 Personen.

Oder mieten Sie das ganze Haus für bis zu 17 Personen für einen Aufenthalt mit einer Gruppe oder der ganzen Großfamilie.
Unser gemütlicher Aufenthaltsraum bietet genügend Platz für ein gemeinsames Frühstück oder gesellige Stunden am Abend.

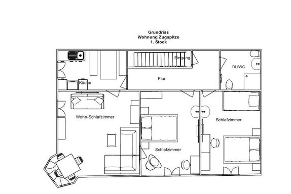
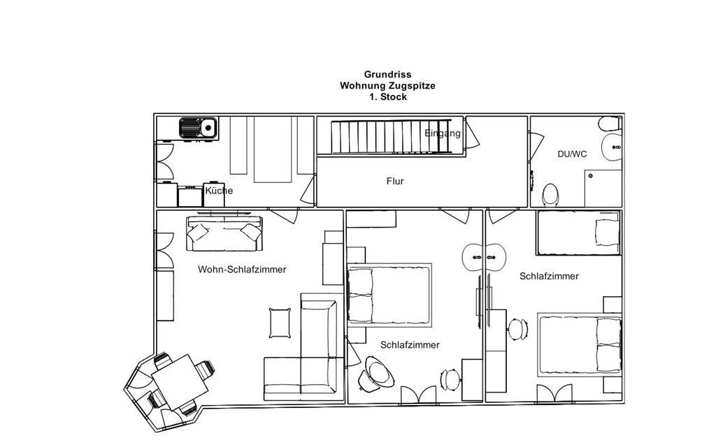
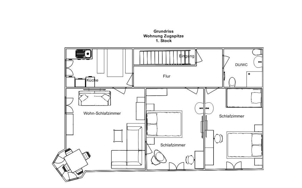
Neu eingerichtete Ferienwohnung Zugspitze mit 70m2 im 1. Sock Schlafzimmer mit Doppelbett und Einzelbett (Bettwäsche vorhanden), Waschbecken und Flat-TV Weiteres Schlafzimmer mit Doppelbett (Bettwäsche vorhanden), Waschbecken und Flat-TV Wohn- Schlafraum mit ausziehbarer Schlafcouch, Erker, Esstischgruppe, Flat-TV. Komplett eingerichtete Küche - Elektroherd mit Backrohr , Kaffeemaschine(Tassimo), Geschirrspüler, Mikrowelle, Toaster, Tisch- und Kochgeschirr) mit gemütlicher Sitzecke. DU/WC (Frotteewäsche vorhanden) Internet via W-LAN

Gesamte Beschreibungweniger anzeigen

Ausstattung

Leistungen
  • Brötchenservice
  • Hochstuhl
Allgemein
  • Heizung
  • Aufenthaltsraum
  • Schlafsofa
  • Wohn/Schlafraum kombi.
  • Sitzgruppe
  • Schreibtisch
  • Terrasse
  • Nichtraucher
  • Haustiere nicht erlaubt
Unterhaltung
  • Kabel/Sat
  • TV
  • Internet
Küche
  • separate Küche
  • Dunstabzug
  • Geschirrspüler
  • Mikrowelle
  • Kühlschrank
  • Kaffeemaschine (Filter)
  • Gefriermöglichkeit
  • Backofen
  • Herd-Ceran, 4 Zonen
Bad/Sanitär
  • Dusche/WC
  • Handtücher
  • Badewanne/WC
  • Haartrockner
Betten
  • Reise-/Kinderbett
  • Einzelbett
  • Doppelbett
  • Bettwäsche

Verfügbarkeit prüfen

Wählen Sie Ihren Reisezeitraum aus, um den Preis zu sehen!
>vorheriges Objekt
Jahresansicht
Mär 2026
Mo Di Mi Do Fr Sa So
            1
2 3 4 5 6 7 8
9 10 11 12 13 14 15
16 17 18 19 20 21 22
23 24 25 26 27 28 29
30 31          
Apr 2026
Mo Di Mi Do Fr Sa So
    1 2 3 4 5
6 7 8 9 10 11 12
13 14 15 16 17 18 19
20 21 22 23 24 25 26
27 28 29 30      
             
Mai 2026
Mo Di Mi Do Fr Sa So
        1 2 3
4 5 6 7 8 9 10
11 12 13 14 15 16 17
18 19 20 21 22 23 24
25 26 27 28 29 30 31
             

Lage • Haus Sandeck - Wohnung Zugspitze

Zugspitzstraße 7, Ehrwald, Tirol
Reisende, die sich die Unterkunft Haus Sandeck - Wohnung Zugspitze angesehen haben, haben diese Unterkünfte gebucht
Merken
61 m²
Ferienwohnung
6 Pers.
2 Schlafz.
Ehrwald
Tirol
Merken
70 m²
Ferienwohnung
5 Pers.
2 Schlafz.
Ehrwald
Tirol
4,8 Ausgezeichnet 4 Bewertungen
Merken
64 m²
Ferienwohnung
5 Pers.
2 Schlafz.
Ehrwald
Tirol
5,0 Ausgezeichnet 4 Bewertungen