Bauernhof

Gästehaus am Weinberg - Schlager - Gästehaus

Weinbergstraße 7, Prinzersdorf, Wien & Niederösterreich - Tolle Lage - Karte anzeigen
0,0
basierend auf 0 Bewertungen
Personen 8
Schlafzimmer 1
Wohnfläche 150 m²
Bauernhof
Prinzersdorf
Objekt-Nr.:
Merken
Teilen

  • Internet
  • TV
  • Terrasse
  • Mikrowelle
  • Geschirrspüler
  • Dusche
  • Nichtraucher
  • Allergikerfreundlich

Beschreibung

Unser gepflegtes Gästehaus mit Zentralheizung bietet auch im Winter für unsere Gäste erholsame Tage.

Ausspannen von Hektik und Lärm und doch aktiv sein.

Genau das können Sie bei uns!

Nahe der Landeshauptstadt St. Pölten und doch im Grünen, direkt beim Fluss Pielach, liegt unser Gästehaus mit Platz für 2 bis 8 Personen.

Prinzersdorf ist der ideale Ausgangspunkt für Wanderungen im Erholungsgebiet Dunkelsteinerwald, Pielachtal, Traisental und in den NÖ Voralpen. 

Perfekte Bedingungen gibt es auch für Sportarten wie Laufen , Tennis, Klettern .... .

Kulturinteressierte finden im Umkreis von St.Pölten viele TOP-Ausflugsziele, wie Stift Melk, die Basilika Maria Taferl, den Wallfahrtsort Mariazell und das WELTKULTURERBE WACHAU.

Ein Wienbesuch ist auch ohne Auto mit einer guten Bahnverbindung möglich (Park & Ride im Ort).

Auch bodenständige Gastronomie u. Heurigenbetriebe finden Sie im Ort und in der Umgebung.

Gerne gebe ich Ihnen persönlich Ratschläge für die Auswahl Ihrer Urlaubsaktivitäten auch unter der Tel. Nummer .

Wir freuen uns über Ihren Aufenthalt bei uns. 
Familie Schlager

 

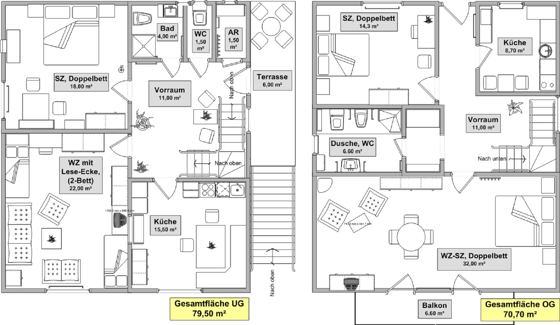
Das Ferienhaus hat eine Wohnfläche von 150m² und kann mit 2 bis 8 Personen belegt werden. Im Erdgeschoß befindet sich ein Doppelzimmer und ein Zimmer mit zwei Einzelbetten, eine Wohnküche, ein Duschbad mit Bidet und ein WC (getrennt). im Obergeschoß befindet sich ein Doppelzimmer (Queen Size) mit Wohnbereich, ein Doppelzimmer und ein Duschbad mit Bidet und WC. Das Obergeschoß kann ab der 5. Person gebucht werden.

Gesamte Beschreibungweniger anzeigen

Ausstattung

Allgemein
  • Terrasse
  • Allergikerfreundlich
  • Nichtraucher
Unterhaltung
  • TV
  • Radio
  • Internet
Küche
  • Kaffeemaschine (Filter)
  • Herd-Ceran, 4 Zonen
  • separate Küche
  • Geschirrspüler
  • Toaster
  • Mikrowelle
  • Kühlschrank
  • Backofen
Bad/Sanitär
  • Haartrockner
  • Dusche
  • Handtücher
Betten
  • Einzelbett
  • Bettwäsche

Verfügbarkeit prüfen

Wählen Sie Ihren Reisezeitraum aus, um den Preis zu sehen!
>vorheriges Objekt
Jahresansicht
Jan 2026
Mo Di Mi Do Fr Sa So
      1 2 3 4
5 6 7 8 9 10 11
12 13 14 15 16 17 18
19 20 21 22 23 24 25
26 27 28 29 30 31  
             
Feb 2026
Mo Di Mi Do Fr Sa So
            1
2 3 4 5 6 7 8
9 10 11 12 13 14 15
16 17 18 19 20 21 22
23 24 25 26 27 28  
             
Mär 2026
Mo Di Mi Do Fr Sa So
            1
2 3 4 5 6 7 8
9 10 11 12 13 14 15
16 17 18 19 20 21 22
23 24 25 26 27 28 29
30 31          

Lage • Gästehaus am Weinberg - Schlager - Gästehaus

Weinbergstraße 7, Prinzersdorf, Wien & Niederösterreich
In der Umgebung
  • Schwimmbad 8,0 km
  • Restaurant 500 m
  • Bushaltestelle 500 m
  • Ortszentrum 500 m
  • Zugbahnhof 1,0 km
  • See / Teich 500 m
Reisende, die sich die Unterkunft Gästehaus am Weinberg - Schlager - Gästehaus angesehen haben, haben diese Unterkünfte gebucht
Merken
150 m²
Bauernhof
8 Pers.
1 Schlafz.
Prinzersdorf
Wien & Niederösterreich