Vorheriges Objekt Zurück zur Liste Nächstes Objekt
Ferienhaus

Chalet Hüsli

Schwendeli 16, Giswil, Luzern & Vierwaldstättersee - Tolle Lage - Karte anzeigen
4,6
Ausgezeichnet
basierend auf 17 Bewertungen
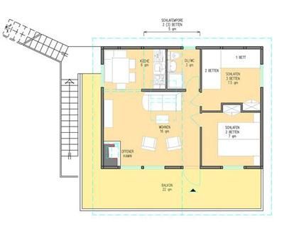
Personen 5
Schlafzimmer 2
Badezimmer 1
Wohnfläche 40 m²
Ferienhaus
Giswil
Objekt-Nr.:
Merken
Teilen

  • Internet
  • TV
  • Balkon
  • Grillmöglichkeit
  • Geschirrspüler
  • Gefriermöglichkeit
  • Dusche
  • Kamin/Ofen
  • Haustiere nicht erlaubt
  • Nichtraucher

Beschreibung

Das Chalet liegt ruhig an einem Süd-Osthang in 800 m Höhe oberhalb des Sarnersees.
(Entfernung: Luzern 34 km, Zürich 84 km, Bern 100 km, Basel 130 km).
Panoramasicht über das Tal des Sarnersees bis zum Berner Oberland.
Setzen Sie Ihre individuellen Schwerpunkte als Paar, Gruppe oder Familie. In dieser Lage finden Sie die vielseitige Kombination aus Ruhe und Erholung, Natur, Aktivurlaub, Sport und Städtetouren.
Ausgangspunkt für viele Freizeit- und Urlaubsaktivitäten: mehrere Bademöglichkeiten am Sarnersee. Mehrere Bergbahnen im Umkreis von 20 Kilometern. Mehrere, auch familienfreundliche Ski- und Langlaufgebiete in 30 min erreichbar.

Kanadier Old Town zur Mieternutzung. Das Boot liegt am Haus und muss auf einem Dachgepäckträger transportiert werden.

- Chalet zur Alleinnutzung
- Anreise mit PKW erforderlich
- 2 eigene Parkplätze vorhanden
- Haus in Hanglage mit Panoramasicht (befestigte Treppe mit 50 Stufen)
- Lage im Bereich einer Stromleitung (s. Bilder)

Sonstige Sport- und Freizeitmöglichkeiten: Schneeschuhlaufen

Ausflugsmöglichkeiten: Melchsee-Frutt, Mörlialp, Aelggialp, Bruder Klaus Flüeli-Ranft, Sarnersee, Fischerparadies Lungern, Jakobsweg, Interlaken, Luzern, Pilatus, Vierwaldstättersee, Engelberg, Titlis, Verkehrshaus Luzern, Freilichtmuseum Ballenberg, Aareschlucht

Sonstige Wohnzimmerausstattung (Wohnzimmer1): Zusätzliche Schlafempore

Sonstige Schlafzimmereinrichtung (Schlafzimmer1): Einbauschrank

Sonstige Kücheneinrichtung (Küche1): Umluftbackofen mit Grill (Blechmaß 37/27cm)Fondueset / Raclette-GrillItal. Espressokanne / PressfilterMilchschäumer (Latte-Art)SodaStreamSaftpresse el.

Sportmöglichkeiten in der Umgebung: Angeln, Bergsteigen, Bolzplatz, Golfplatz, Kanu, Klettern, Mountainbiking, Paragliding, Radtouren, Rafting, Reitplatz / Reitmöglichkeiten, Rodeln, Rudern, Ski (alpin), Ski (Langlauf), Squash, Surfen, Tauchen, Tennis, Segeln

Ortsbeschreibung: Inmitten einer weiten Erholungslandschaft mit See, Wälder, Alpen und Berge findet sich Giswil. Der Ort verfügt über eine Reihe guter Hotels und Restaurants mit ausgezeichneter Gastronomie. Das familienfreundliche Wintersportgebiet Mörlialp ist von Giswil in 20 Minuten mit dem Auto erreichbar.Basisinformationen:
- Haustiere erlaubt: keins

- Unterkunftstyp: Ferienhaus
- befindet sich in: Wohnsiedlung
- Self Check-in / kontaktlos

Top Merkmale:
- Private PKW-Stellplätze insgesamt für diese Unterkunft: 2


Badezimmer 1: - Tageslicht


Kochen/Wohnen:
- Kaffeemaschine: Kaffeemaschine

- Kühl-/Gefrierschrank: Gefrierfach, Kühlschrank
- Herd: Cerankochfeld, Elektroherd, Herd
- Minibackofen
- Geschirrtücher
- Anzahl Wohnzimmer: 1
- Kamin

Entertainment:
- Fernseher: TV, Sat.-TV

- Gesellschaftsspiele für Erwachsene

Für Kinder:
- Kinderspielzeug

- Gesellschaftsspiele für Kinder

Hauswirtschaft:
- Bügeleisen

- Ventilator: 1

Außenbereich:
- Outdoormöbel

- Grill: Grill

Umgebung:
- Aussicht: Berg, Tal

- nächste Haltestelle ÖPNV: 2,1 km
- Wassersport: 4,6 km
- Boot inklusive: Boot
- Wanderweg: 500 m
- Skiabfahrt: 16,0 km
- Skischule: 16,0 km
- Berg-/Seilbahn: 16,0 km

Besonderheiten:
- Anglerfreundlich

- Chalet




Nebenkosten:
Strom : inklusive
Bettwäsche: inklusive
Handtücher: inklusive
Kaminholz: inklusive
Parkmöglichkeit: inklusive
Internet: inklusive
Endreinigung: 120 CHF einmalig pro Objekt ( von 25.10.2025 bis 08.11.2027, verpflichtend)

Gesamte Beschreibungweniger anzeigen

Ausstattung

Allgemein
  • Grillmöglichkeit
  • Haustiere nicht erlaubt
  • Nichtraucher
  • Balkon
  • Kamin/Ofen
  • Heizung
  • Rauchmelder
Unterhaltung
  • Kabel/Sat
  • TV
  • Radio
  • Smart-TV
  • CD-Player
  • Internet
  • DVD-Player
Küche
  • Kaffeemaschine (Filter)
  • Herd-Ceran, 4 Zonen
  • Geschirrspüler
  • Toaster
  • Kühlschrank
  • Gefriermöglichkeit
Bad/Sanitär
  • Badewanne/WC
  • Dusche
  • Haartrockner
Betten
  • Reise-/Kinderbett
  • Einzelbett

Verfügbarkeit prüfen

Wählen Sie Ihren Reisezeitraum aus, um den Preis zu sehen!
>vorheriges Objekt
Jahresansicht
Feb 2026
Mo Di Mi Do Fr Sa So
            1
2 3 4 5 6 7 8
9 10 11 12 13 14 15
16 17 18 19 20 21 22
23 24 25 26 27 28  
             
Mär 2026
Mo Di Mi Do Fr Sa So
            1
2 3 4 5 6 7 8
9 10 11 12 13 14 15
16 17 18 19 20 21 22
23 24 25 26 27 28 29
30 31          
Apr 2026
Mo Di Mi Do Fr Sa So
    1 2 3 4 5
6 7 8 9 10 11 12
13 14 15 16 17 18 19
20 21 22 23 24 25 26
27 28 29 30      
             

Lage • Chalet Hüsli

Schwendeli 16, Giswil, Luzern & Vierwaldstättersee
In der Umgebung
  • Entfernung Gewässer 4,6 km
  • Entfernung Restaurant 3,0 km
  • Entfernung See 4,6 km
  • Nächster Flughafen (Entfernung) 100,0 km
  • Nächster Bahnhof (Entfernung) 6,3 km
  • Entfernung Einkaufsmöglichkeit 4,6 km
  • Nächste Autobahn (Entfernung) 6,0 km
Reisende, die sich die Unterkunft Chalet Hüsli angesehen haben, haben diese Unterkünfte gebucht
Chalet Hüsli - Chalet Hüsli .1
Merken
40 m²
Ferienhaus
5 Pers.
Giswil
Luzern & Vierwaldstättersee
Haus Eberli-Bussmann - Haus Eberli-Bussmann .1
Merken
100 m²
Ferienhaus
9 Pers.
Giswil
Luzern & Vierwaldstättersee
Merken
40 m²
Ferienhaus
5 Pers.
2 Schlafz.
Giswil
Luzern & Vierwaldstättersee
4,6 Ausgezeichnet 17 Bewertungen
Merken
100 m²
Ferienhaus
5 Pers.
2 Schlafz.
Giswil
Luzern & Vierwaldstättersee
4,7 Ausgezeichnet 18 Bewertungen