Vorheriges Objekt Zurück zur Liste Nächstes Objekt
Ferienwohnung

Ferienwohnung Schönau

Flurstraße 3, Immenstadt im Allgäu, Allgäu - Tolle Lage - Karte anzeigen
5,0
Ausgezeichnet
basierend auf 1 Bewertung
Personen 2
Schlafzimmer 1
Wohnfläche 50 m²
Ferienwohnung
Immenstadt im Allgäu
Objekt-Nr.:
Merken
Teilen

  • Internet
  • TV
  • Terrasse
  • Balkon
  • Geschirrspüler
  • Badewanne
  • Kamin/Ofen
  • Kachelofen
  • Waschmaschine
  • Nichtraucher

Beschreibung

Anfragen gerne direkt (mindestens 10 Tage)
Gemütliche, moderne Zweizimmerwohnung (Nichtraucher) im zweiten Stock geeignet für 2 Personen, gut erreichbar mit öffentlichen Verkehrsmitteln. Am südlichen Stadtrand von Immenstadt – unmittelbar vor der Talstation vom Hausberg 'Mittag', dem östlichsten Startpunkt in den Naturpark Nagelfluhkette.
Im Umkreis von einem Kilometer liegen der Bahnhof und die Innenstadt mit Schloss, Einkaufsmöglichkeiten, Restaurants und Bars. Der Bäcker für die Frühstückssemmeln ist nur 350 m entfernt. Modern eingerichtet und gut ausgestattet ist die Wohnung der ideale Stützpunkt für sehr viele Freizeitmöglichkeiten.
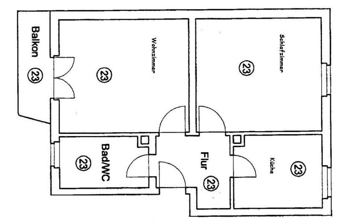
Wohn- Esszimmer mit Schlafsofa und Kaminofen, Schlafzimmer, Küche (Induktionskochfeld, Backofen, Spülmaschine) und modernes Bad/WC mit Badewanne. 
Nach einem erlebnisreichen Tag genießen Sie den Abend auf dem überdachten Westbalkon oder kuschelig vor dem Kaminofen.

Gemütliche, moderne Zweizimmerwohnung. Wohn- Esszimmer mit Schlafsofa und Kaminofen, Schlafzimmer, Küche (Herd mit Heißluft incl. Grill) und Bad mit Badewanne.

Gesamte Beschreibungweniger anzeigen

Ausstattung

Allgemein
  • Rauchmelder
  • Nichtraucher
  • Waschmaschine
  • Terrasse
  • Balkon
  • Kamin/Ofen
  • Kachelofen
Unterhaltung
  • TV
  • Radio
  • CD-Player
  • Internet
Küche
  • Kaffeemaschine (Filter)
  • Herd-Ceran, 4 Zonen
  • separate Küche
  • Geschirrspüler
  • Toaster
  • Backofen
Bad/Sanitär
  • Haartrockner
  • Badewanne
  • Dusche/WC
  • Handtücher
Betten
  • Doppelbett
  • Bettwäsche

Verfügbarkeit prüfen

Wählen Sie Ihren Reisezeitraum aus, um den Preis zu sehen!
Feb 2026
Mo Di Mi Do Fr Sa So
            1
2 3 4 5 6 7 8
9 10 11 12 13 14 15
16 17 18 19 20 21 22
23 24 25 26 27 28  
             
Mär 2026
Mo Di Mi Do Fr Sa So
            1
2 3 4 5 6 7 8
9 10 11 12 13 14 15
16 17 18 19 20 21 22
23 24 25 26 27 28 29
30 31          
Apr 2026
Mo Di Mi Do Fr Sa So
    1 2 3 4 5
6 7 8 9 10 11 12
13 14 15 16 17 18 19
20 21 22 23 24 25 26
27 28 29 30      
             

Lage • Ferienwohnung Schönau

Flurstraße 3, Immenstadt im Allgäu, Allgäu
Reisende, die sich die Unterkunft Ferienwohnung Schönau angesehen haben, haben diese Unterkünfte gebucht
Merken
50 m²
Ferienwohnung
4 Pers.
2 Schlafz.
Immenstadt im Allgäu
Allgäu
Merken
50 m²
Ferienwohnung
2 Pers.
1 Schlafz.
Immenstadt im Allgäu
Allgäu
Merken
51 m²
Ferienhaus
4 Pers.
1 Schlafz.
Immenstadt im Allgäu
Allgäu
Merken
50 m²
Ferienwohnung
2 Pers.
1 Schlafz.
Immenstadt im Allgäu
Allgäu
4,8 Ausgezeichnet 2 Bewertungen