Vorheriges Objekt Zurück zur Liste Nächstes Objekt
Ferienwohnung

Casa Migiur, (Laax Dorf). 3.5 Zimmerwohnung

Via Radiras, Laax, Graubünden - Tolle Lage - Karte anzeigen
4,5
Ausgezeichnet
basierend auf 6 Bewertungen
Personen 6
Schlafzimmer 2
Badezimmer 2
Wohnfläche 73 m²
Ferienwohnung
Laax
Objekt-Nr.:
Merken
Teilen

  • Internet
  • Terrasse
  • Balkon
  • Grillmöglichkeit
  • Mikrowelle
  • Geschirrspüler
  • Badewanne
  • Sauna
  • Waschmaschine
  • Trockner
  • Haustiere nicht erlaubt
  • Nichtraucher

Beschreibung

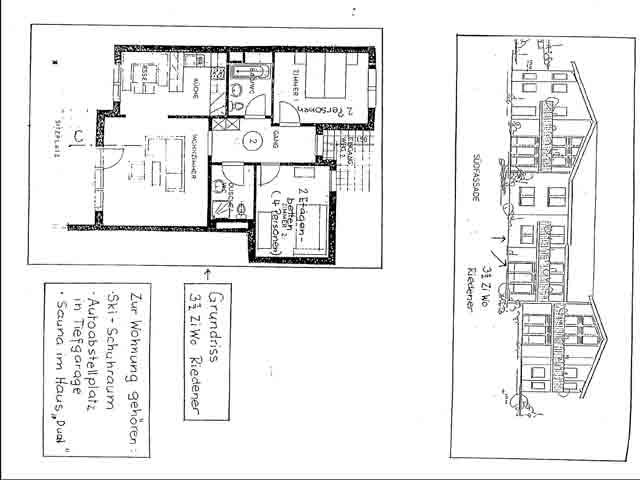
Von der Ferienwohnung ins Zentrum vom Dorf sind es nur 5 Minuten zu Fuss, ebenso zur Bushaltestelle Demvitg. Der kostenlose Ortsbus fährt Sie in nur 5 Minuten Fahrzeit zu den Bergbahnen nach Laax Murschetg oder nach Flims.Im Haus ist ein Skiraum vorzufinden, in welchem Skis, Snowboards wie auch Schuhe getrocknet und aufbewahrt werden können. Über die Tiefgarage ist das Nebenhaus Casa Dual erreichbar, in welchem eine Sauna zur gemeinsamen Benützung zur Verfügung steht. Ein Reservationsbuch ausserhalb der Sauna regelt die Benützung. Auf Anfrage stellen wir Ihnen gerne ein Reisebett für Kleinkinder zur Verfügung.

Am Dorfrand von Laax, idyllisch ruhig gelegen, befindet sich die 3.5 Zimmerwohnung Casa Migiur. Die helle Parterre-Wohnung bietet auf 73m2 Platz für 6 Gäste. Sie verfügt über einen Garten mit Terasse und Grill, ein Schlafzimmer mit Doppelbett und ein Schlafzimmer mit zwei Etagenbetten. Im Familien-Badezimmer befindet sich eine Badewanne mit Toilette und Waschbecken. Im kleinen Bad ist separat eine Dusche mit Toilette und Waschbecken vorzufinden. Die Küche ist mit einem Glaskeramikherd, Backofen, Spülmaschine und einem Kühlschrank mit Tiefkühlfach, einer Kaffeefiltermaschine, einem Raclette-, Käse- und Chinoise-Fondue-Set ausgestattet.
Ein Fernseher, Radio sowie WLAN stehen zur freien Benützung bereit.

Konditionen und Extras
Bettwäsche, Endreinigung und ein Set Frottéewäsche pro Person sind im Gesamtpreis enthalten, ebenso die Kurtaxen. Hunde sind in dieser Wohnung auf Anfrage erlaubt und werden mit 10 CHF/Nacht vor Ort verrechnet. Ebenso wird die Benützung der Sauna am Ende des Aufenthalts mit 12 CHF/Benützung vor Ort abgerechnet.

Ausstattung
2 Schlafräume, Babybett, Backofen, Balkon, Fondue-Set, Garten, Geschirrspüler, Grillmöglichkeit, Haustiere auf Anfrage, Internetverbindung, Kaffeemaschine, Kinderbett, Küche, Küchenwäsche, Kühlschrank, Mikrowelle, Nichtraucherzimmer-/wohnung, Parking, Raclette-Set, Radio, Sauna, Sauna in Zimmer/ FeWo, Terrasse, Töpfe Pfannen Geschirr, TV, Wäschetrockner, Wäschetrockner im Haus, Waschmaschine, Waschmaschine im Haus, WiFi

Badezimmer
Anzahl Badezimmer: 2, Badewanne, Badewäsche vorhanden, Dusche, Haartrockner

Dienstleistungen
Fahrradabstellraum, Familienfreundlich, Garage, Haustiere auf Anfrage, Parkplatz, Skikeller/-abstellraum

Lage
Entfernung Thermalbäder (in km): 1.2 (km), Entfernung zum Golf (in km): 3.3 (km), Entfernung zum nächsten Skilift (in km): 2.5 (km), Entfernung zum See (in km): 750 (m), Entfernung zur Dorfmitte (in km): 500 (m), Entfernung zur Loipe (in km): 4.3 (km), Entfernung zur nächsten Haltestelle (in km): 500 (m), Freistehendes Gebäude, Mit öffentlichen Verkehrsmitteln erreichbar, Ortsrand, Ruhige Umgebung, Zentrale Lage (im Dorf/Stadt)

Unterkunftstyp
Ferienwohnung, Privateigentümer

Belegung
2-6 Personen
2-6 Erwachsene
0-4 Kinder (0-17 Jahr(e))

Gesamte Beschreibungweniger anzeigen

Ausstattung

Allgemein
  • Balkon
  • Terrasse
  • Waschmaschine
  • Grillmöglichkeit
  • Haustiere nicht erlaubt
  • Nichtraucher
  • Trockner
Unterhaltung
  • Kabel/Sat
  • Radio
  • Internet
Küche
  • Geschirrspüler
  • Mikrowelle
  • Kühlschrank
  • Kaffeemaschine (Filter)
  • Backofen
Bad/Sanitär
  • Haartrockner
  • Badewanne
Wellness
  • Sauna

Verfügbarkeit prüfen

Wählen Sie Ihren Reisezeitraum aus, um den Preis zu sehen!
>vorheriges Objekt
Jahresansicht
Jan 2026
Mo Di Mi Do Fr Sa So
      1 2 3 4
5 6 7 8 9 10 11
12 13 14 15 16 17 18
19 20 21 22 23 24 25
26 27 28 29 30 31  
             
Feb 2026
Mo Di Mi Do Fr Sa So
            1
2 3 4 5 6 7 8
9 10 11 12 13 14 15
16 17 18 19 20 21 22
23 24 25 26 27 28  
             
Mär 2026
Mo Di Mi Do Fr Sa So
            1
2 3 4 5 6 7 8
9 10 11 12 13 14 15
16 17 18 19 20 21 22
23 24 25 26 27 28 29
30 31          

Lage • Casa Migiur, (Laax Dorf). 3.5 Zimmerwohnung

Via Radiras, Laax, Graubünden
Reisende, die sich die Unterkunft Casa Migiur, (Laax Dorf). 3.5 Zimmerwohnung angesehen haben, haben diese Unterkünfte gebucht
Merken
94 m²
Ferienwohnung
6 Pers.
3 Schlafz.
Laax
Graubünden
Merken
Ferienwohnung
6 Pers.
3 Schlafz.
Laax
Graubünden
Merken
126 m²
Ferienwohnung
6 Pers.
3 Schlafz.
Laax
Graubünden
4,8 Ausgezeichnet 3 Bewertungen
Merken
60 m²
Ferienwohnung
6 Pers.
2 Schlafz.
Laax
Graubünden
4,1 Sehr Gut 4 Bewertungen