Vorheriges Objekt Zurück zur Liste Nächstes Objekt
Ferienhaus

Ferienhütte

Hüttau 14, Hüttau, Salzburger Land - Tolle Lage - Karte anzeigen
4,4
Sehr Gut
basierend auf 6 Bewertungen
Personen 19
Schlafzimmer 4
Badezimmer 2
Wohnfläche 150 m²
Ferienhaus
Hüttau
Objekt-Nr.:
Merken
Teilen

  • Internet
  • Terrasse
  • Balkon
  • Grillmöglichkeit
  • Mikrowelle
  • Geschirrspüler
  • Gefriermöglichkeit
  • Dusche
  • Kamin/Ofen
  • Haustier erlaubt

Beschreibung

Dieses über 300 Jahre alte Bauernhaus wurde im Jahre 2015 für Sie saniert. Egal ob Sie einen Ski-, Wanderurlaub machen oder einfach nur bei einem Kurzaufenthalt entspannen möchten, dieses Ferienhaus ist immer die richtige Wahl und zum Beispiel bestens geeignet für einen Kurzurlaub oder längeren Aufenthalt mit Freunden und Familie. Das Haus liegt 3,5 Kilometer oberhalb von Hüttau, Ihr Ausgangspunkt zur Salzburger Sportwelt Amadé.Großes, altes Bauernhaus (Renovierung 2015) oberhalb von Hüttau in der Nähe der Sportwelt Amadé

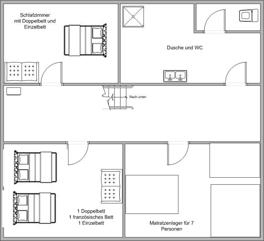
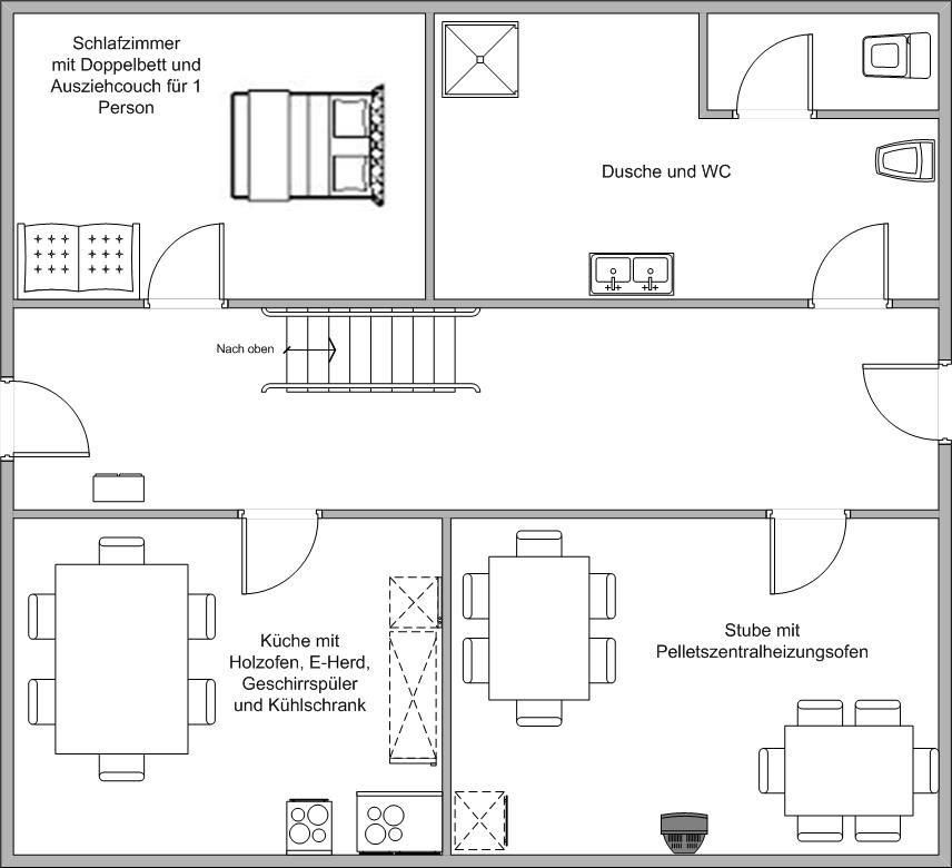
Sie wohnen allein in einem sehr einfach ausgestatteten, alten Bauernhaus. Auf einer Wohnfläche von 150 m² bietet es idealerweise Platz für zwölf Personen. Die Hütte verfügt über eine Zentralheizung, die vom Pelletofen in der Bauernstube versorgt wird. Die gemütliche Küche im rustikalen Stil im Erdgeschoss wird mit einem Holzofen beheizt und ist voll mit Herd, Backofen, Kaffeemaschine, Kühlschrank, Mikrowelle, Spülmaschine und Wasserkocher ausgestattet. Am großen Esstisch gibt es ausreichend Platz für alle, sei es zum Frühstück für einen gelungenen Start oder wenn man sich zum Abendessen nach einem erlebnisreichen Tag trifft. Ein Schlafzimmer sowie eines der beiden Bäder mit Dusche und WC befinden sich ebenfalls im Erdgeschoss des Hauses. Das zweite Duschbad sowie die drei restlichen Schlafräume liegen im Obergeschoss. Das erste Schlafzimmer verfügt über ein Doppelbett in normaler Breite. Im zweiten Zimmer gibt es ein Matratzenlager für sieben Personen bestehend aus zwei Doppelbetten und drei nebeneinander stehenden Einzelbetten. Alle Betten haben eine normale Breite. Das dritte Schlafzimmer bietet Ihnen ein normal breites Doppelbett, ein französisches Doppelbett (140 cm Breite) sowie ein normal breites Einzelbett. Im vierten Zimmer schließlich stehen Ihnen noch ein normal breites Doppel- und Einzelbett zur Verfügung, sodass im Haus eine Maximalbelegung mit 19 Personen möglich ist.

Das Grundstück ist nicht eingezäunt. Hunde können aber gerne frei laufen. Am Haus stehen zehn Gästeparkplätze zur Verfügung.

Im Winter benötigen Sie für die Bergfahrt zum Bauernhaus (3,5 Kilometer) unbedingt Schneeketten. Der Internetzugang (30 Mbit/s), das Brennholz ist im Mietpreis bereits enthalten.

Die nächsten Einkaufsmöglichkeiten finden Sie unten in Hüttau. Ganz egal, wie Sie Ihren Urlaub verbringen möchten, aktiv oder nur faulenzen. Schnell erreichen Sie die Skigebiete in der Salzburger Sportwelt Amadé, zu den 870 Kilometern bestens präparierten Skipisten mit den modernsten Liftanlagen. Das Haus ist auch der ideale Ausgangspunkt für Wanderungen auf den umliegenden Bergen mit zahlreichen, einladenden Almhütten, für historische Ausflüge zu Burgen und Schlössern im Salzburger Land oder besuchen Sie Sehenswürdigkeiten wie zum Beispiel die größte Eishöhle der Welt die “Eisriesenwelt”. Auch ein Ausflug zur einzigartigen “Großglockner Höhenstraße” sollte in Ihrer Urlaubsplanung nicht fehlen.

Allgemein: Badezimmer: 2; Baujahr: 1700; Freistehendes Gebäude; Gesamtanzahl d. Stockwerke im Gebäude: 2; Grundstücksfläche: 220000 qm; Renovierungsjahr: 2015; Schlafzimmer: 4

Schlafmöglichkeiten: Anzahl Doppelbetten (1,80m Breite): 7; Anzahl Einzelbetten: 6; Anzahl Doppelbetten (von 1,31 m bis 1,50 m Breite): 2

Wohnen: CD-Player; Kabel-TV; Kamin; Kaminofen; Radio

Bad/WC: Dusche; Dusche; Dusche; Toilette; Toilette; Toilette; Waschbecken; Waschbecken

Kochen: Backofen; Gefrierfach; Herd; Kaffeemaschine; Kühlschrank; Mikrowelle; Spülmaschine; Wasserkocher

Sonstiges: Anbieter wohnt auf dem Grundstück; Bergblick; Berghütte; Haustier erlaubt: max. 2; Heizung; W-Lan


Nebenkosten:
Bettwäsche: 8,00 EUR pro Person (verpflichtend, müssen vor Ort bezahlt werden)
Brennholz: inklusive
Endreinigung: 200,00 EUR (verpflichtend)
Energiekosten: inklusive
Handtücher: 8,00 EUR pro Person (verpflichtend, müssen vor Ort bezahlt werden)
Haustier: 10,00 EUR pro Haustier pro Tag (verpflichtend bei Anreise mit Haustier)
Internet: inklusive
Kurtaxe: 1,80 EUR pro Person pro Tag ( für Mitreisende von 16 bis 99 Jahr(e), verpflichtend, müssen vor Ort bezahlt werden)
Kurzaufenthalt Zuschlag: 600,00 EUR ( bei Reisedauer von 1 bis zu 4 Tag(e), verpflichtend)
Pauschal: 380,00 EUR (verpflichtend, müssen vor Ort bezahlt werden)
Überbelegung (Auf Anfrage): 30,00 EUR pro Person pro Tag (optional, müssen vor Ort bezahlt werden)

Gesamte Beschreibungweniger anzeigen

Ausstattung

Allgemein
  • Heizung
  • Kamin/Ofen
  • Balkon
  • Grillmöglichkeit
  • Terrasse
  • Haustier erlaubt
Unterhaltung
  • Kabel/Sat
  • Radio
  • CD-Player
  • Internet
Küche
  • Herd-Ceran, 4 Zonen
  • Geschirrspüler
  • Mikrowelle
  • Kühlschrank
  • Kaffeemaschine (Filter)
  • Gefriermöglichkeit
  • Backofen
Bad/Sanitär
  • Dusche

Verfügbarkeit prüfen

Wählen Sie Ihren Reisezeitraum aus, um den Preis zu sehen!
>vorheriges Objekt
Jahresansicht
Jan 2026
Mo Di Mi Do Fr Sa So
      1 2 3 4
5 6 7 8 9 10 11
12 13 14 15 16 17 18
19 20 21 22 23 24 25
26 27 28 29 30 31  
             
Feb 2026
Mo Di Mi Do Fr Sa So
            1
2 3 4 5 6 7 8
9 10 11 12 13 14 15
16 17 18 19 20 21 22
23 24 25 26 27 28  
             
Mär 2026
Mo Di Mi Do Fr Sa So
            1
2 3 4 5 6 7 8
9 10 11 12 13 14 15
16 17 18 19 20 21 22
23 24 25 26 27 28 29
30 31          

Lage • Ferienhütte

Hüttau 14, Hüttau, Salzburger Land
In der Umgebung
  • Entfernung Restaurant 1,0 km
  • Entfernung See 10,0 km
  • Nächster Flughafen (Entfernung) 60,0 km
  • Nächster Bahnhof (Entfernung) 4,0 km
  • Entfernung Stadt 3,0 km
  • Entfernung nächster Skilift/Bergbahn/Loipe 10,0 km
Reisende, die sich die Unterkunft Ferienhütte angesehen haben, haben diese Unterkünfte gebucht
Bauernhaus - Bauernhaus .1
Merken
150 m²
Ferienhaus
19 Pers.
Hüttau
Salzburger Land
Merken
150 m²
Ferienhaus
19 Pers.
4 Schlafz.
Hüttau
Salzburger Land
4,4 Sehr Gut 6 Bewertungen