Ferienhaus

Victoria Foidl-Schneider - Doppelzimmer Waldblick

Hinterbichl 12, Lechaschau, Tirol - Tolle Lage - Karte anzeigen
0,0
basierend auf 0 Bewertungen
Personen 3
Schlafzimmer 1
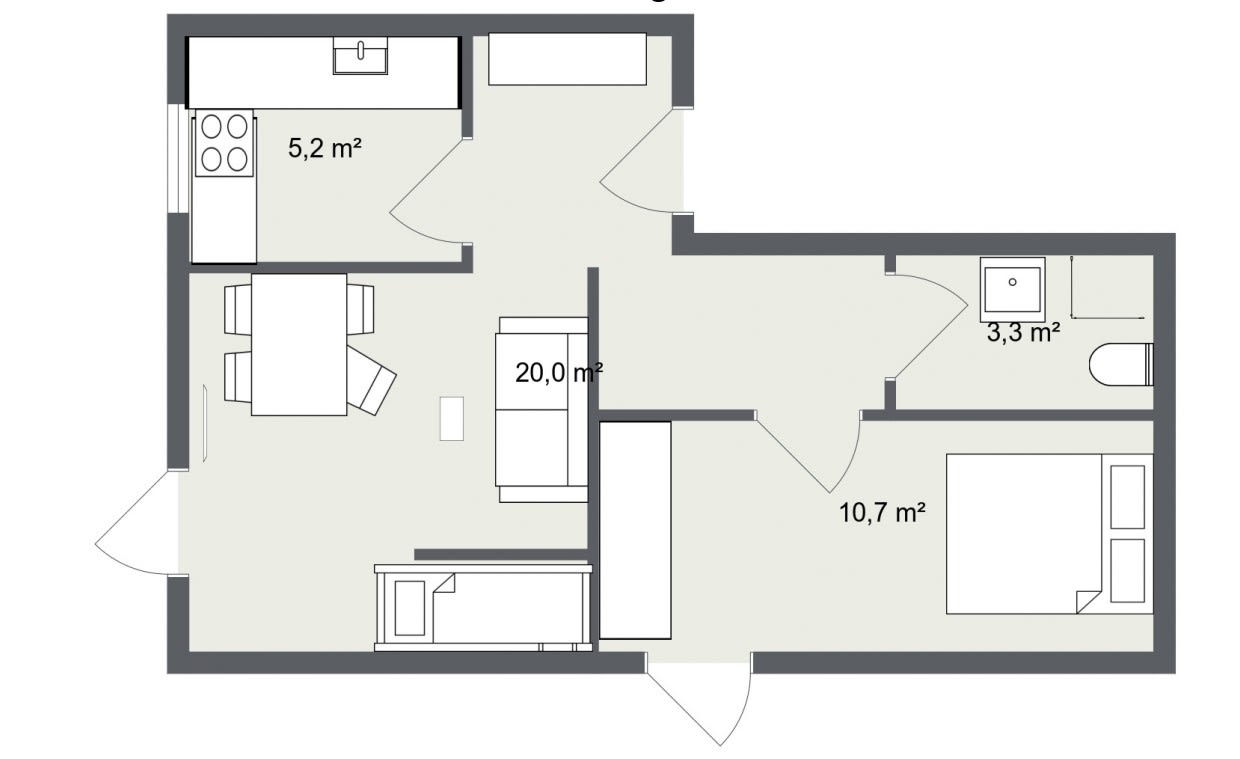
Wohnfläche 26 m²
Ferienhaus
Lechaschau
Objekt-Nr.:
Merken
Teilen

  • Internet
  • TV
  • Terrasse
  • Mikrowelle
  • Geschirrspüler
  • Dusche
  • Sauna
  • Haustier erlaubt
  • Nichtraucher
  • E-Auto Ladestation
  • Safe

Beschreibung

Im Tannenhof können Sie abschalten. Den Tag genießen. Der Tannenhof steht für Ruhe, sich entfalten, den Tag kreativ und individuell genießen. Wir freuen uns auf Gäste, die bewusst auf Ruhe und Natur setzen. Wir leben in einer herrlichen, farbenfroher Natur, wir dürfen jeden Morgen frische Luft einatmen. Diesen Schatz teilen wir gerne mit unseren Gästen. Bei uns fühlen sich Eltern mit Kindern, Großeltern, Motorradfahrer, Sportbegeisterte gleichermaßen wohl. Wir sind nicht auf eine bestimmte Gästeschicht spezialisiert. Menschen mit Herz finden bei uns ein zweites zu Hause. Menschen, die sich etwas Gutes tun, in dem sie Nichts tun außer den Tag genießen. Freuen Sie sich auf erholsame Tage im Tannenhof.

Für Ihren Aufenthalt stellen wir Ihnen die Aktiv Card aus. Hier können sie bei verschiedenen Aktivitäten kostenlos teilnehmen. Sie erhalten eine Ermäßigung in der Therme und bei den Bergwelten am Hahnenkamm.  

Im Haus steht ihnen ein Fahrradraum/Abstellraum zur Verfügung. Trockner und Waschmaschine gegen Gebühr. Sauna mit Finnischer Sauna und Kräutersauna. 

Entspannen Sie in unseren komfortablen Doppelzimmern mit herrlichem Blick auf den ruhigen Wald. Auf 26 Quadratmetern erwartet Sie ein erholsamer Aufenthalt mit einem Kingsize-Bett und einem Einzelbett. Jedes Zimmer verfügt über ein separates Badezimmer mit Dusche und WC.

Diese Zimmer lassen sich flexibel zu unseren Appartements hinzubuchen – ideal für größere Familien oder Gruppen, die zusätzlichen Platz benötigen. Zur Ausstattung gehören außerdem kostenfreies WLAN, eine gemütliche Sitzecke, ein moderner Flachbildfernseher und ein Safe für Ihre Wertsachen. Unsere Zimmer sind zudem Nichtraucherzimmer.

Selbstverständlich sind frische Handtücher und Bettwäsche im Preis inbegriffen. Getränke sind bequem im Haus erhältlich.

Bitte beachten Sie, dass ein eventuell benötigtes drittes Bett im Voraus angemeldet werden muss. Genießen Sie das moderne Ambiente unseres Hauses.

Bitte beachten Sie, dass das Frühstück nicht im Preis inbegriffen ist.

Gesamte Beschreibungweniger anzeigen

Ausstattung

Leistungen
  • Brötchenservice
Allgemein
  • Safe
  • Aufenthaltsraum
  • Trocknerraum – in der Anlage
  • E-Auto Ladestation
  • Haustier erlaubt
  • Terrasse
  • Nichtraucher
  • Fahrstuhl/Aufzug
Unterhaltung
  • Internet
  • TV
Küche
  • separate Küche
  • Geschirrspüler
  • Mikrowelle
  • Kaffeemaschine (Filter)
Bad/Sanitär
  • Dusche
  • Handtücher
Wellness
  • Sauna
Betten
  • Einzelbett
  • Doppelbett
  • Bettwäsche

Verfügbarkeit prüfen

Wählen Sie Ihren Reisezeitraum aus, um den Preis zu sehen!
Mär 2026
Mo Di Mi Do Fr Sa So
            1
2 3 4 5 6 7 8
9 10 11 12 13 14 15
16 17 18 19 20 21 22
23 24 25 26 27 28 29
30 31          
Apr 2026
Mo Di Mi Do Fr Sa So
    1 2 3 4 5
6 7 8 9 10 11 12
13 14 15 16 17 18 19
20 21 22 23 24 25 26
27 28 29 30      
             
Mai 2026
Mo Di Mi Do Fr Sa So
        1 2 3
4 5 6 7 8 9 10
11 12 13 14 15 16 17
18 19 20 21 22 23 24
25 26 27 28 29 30 31
             

Lage • Victoria Foidl-Schneider - Doppelzimmer Waldblick

Hinterbichl 12, Lechaschau, Tirol
Reisende, die sich die Unterkunft Victoria Foidl-Schneider - Doppelzimmer Waldblick angesehen haben, haben diese Unterkünfte gebucht
Merken
65 m²
Ferienhaus
5 Pers.
1 Schlafz.
Lechaschau
Tirol
Merken
44 m²
Ferienhaus
4 Pers.
1 Schlafz.
Lechaschau
Tirol
Merken
50 m²
Ferienhaus
4 Pers.
1 Schlafz.
Lechaschau
Tirol
Merken
Ferienhaus
4 Pers.
1 Schlafz.
Lechaschau
Tirol