Vorheriges Objekt Zurück zur Liste Nächstes Objekt
Ferienwohnung

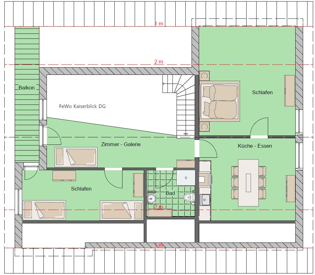
Landerhauser-Hof - Ferienwohnung Kaiserblick, 90 qm, zwei Schlafzimmer, Balkon

Landerhausen 2, Schleching, Oberbayern - Tolle Lage - Karte anzeigen
0,0
basierend auf 0 Bewertungen
Personen 5
Ferienwohnung
Schleching
Objekt-Nr.:
Merken
Teilen

  • Internet
  • TV
  • Terrasse
  • Balkon
  • Grillmöglichkeit
  • Mikrowelle
  • Geschirrspüler
  • Gefriermöglichkeit
  • Dusche
  • Waschmaschine
  • Trockner
  • Haustiere nicht erlaubt
  • Nichtraucher
  • Allergikerfreundlich

Beschreibung

Wir vermieten 2 Ferienwohnungen in herrlicher Lage und freiem Bergblick.

Diese können auch miteinander verbunden werden, sodass bis zu 9 Personen im gesamten Ferienhaus Platz finden.

Außerdem bieten wir einen Stellplatz für bis zu 3 Wohnmobile an. Dieser befindet sich in unmittelbarer Nähe.

 


Zur Standardausstattung der Ferienwohnungen gehören unter anderem:




• Küchenvollausstattung (Geschirr, Besteck, versch. Gläser, Töpfe, Pfannen usw.)

• Spülmaschine

• Mikrowelle

• Kühlschrank mit Gefrierfach

• Wasserkocher

• Kaffeemaschine

• Toaster

• Eierkocher

• E-Herd mit Backofen

• Haarföhn

• Staubsauger, Putzmittel, Bodenwischer

• Wäscheständer- und klammern

• Gartenliegen mit Auflagen

• Grill und Grillkohle

• Garage als verschließbarer Abstellraum (Fahrräder, Ski, etc.)




 

Ausserdem bieten wir folgende Extras an:




• Jede Wohnung verfügt über Satelliten-TV mit integriertem WLAN

• Kostenfreier Internetzugang via WLAN

• Handtücher und Bettwäsche werden gestellt

• Kuscheldecken, Geschirrtücher, Spüllappen werden gestellt

• Kleinkindausstattung ist vorhanden (Hochstuhl, Reisebett, Kinderwagen (Buggy), Wickelauflage, Bettschutzgitter und Treppenschutzgitter)

• Steckdosen sind für Kleinkinder mit einer Sicherung geschützt

• Beide Wohnungen können über eine Zwischentüre im Innenraum miteinander verbunden werden (für größere Gruppen/Familien)

• Außerdem steht Ihnen eine Spiel- und Liegewiese zur Verfügung (Schaukel, Sandkasten und verschiedene Spielgeräte)

• Parkplätze direkt am Haus (nicht überdacht)

• Kostenlose Müllentsorgung (Mülltrennung ist Pflicht!)

• Waschmaschine und Trockner (eigener Raum am Bauernhaus mit separatem Zugang von aussen - Waschmittel, Wäschekorb etc. vorhanden)





Konditionen

Die genannten Preise sind zzgl. Kurbeitrag i.H.v. € 2,00 pro Person/Nacht für Erwachsene ab dem vollendeten 16. Lebensjahr. Kinder von 6 bis 15 Jahren: € 1,00, Kinder von 0 bis 5 Jahre sind kurbeitragsfrei.

• Beide Wohnungen können über eine Türe miteinander verbunden werden (ideal für größere Familien/Gruppen)

• Große, überdachte Terrasse mit Kaiserblick auf die Berge

• Bad mit Dusche und WC

• Separates Schlafzimmer mit 2 Betten

• Großräumiges Wohnzimmer mit Galerie und Kastenbett im OG

• Balkon mit Bistrotisch und Stühlen

• Klassifizierung mit 3 Sternen in der Kategorie Landurlaub

Gesamte Beschreibungweniger anzeigen

Ausstattung

Highlights
  • Blick auf die Berge
Leistungen
  • Hochstuhl
Allgemein
  • Balkon
  • Terrasse
  • Allergikerfreundlich
  • Waschmaschine
  • Trockner
  • Nichtraucher
  • Haustiere nicht erlaubt
  • Grillmöglichkeit
  • E-Bike Ladestation
  • Heizung
  • Rauchmelder
Unterhaltung
  • TV-Flachbild
  • Internet
  • TV
  • Kabel/Sat
Küche
  • Backofen
  • Herd-Ceran, 4 Zonen
  • separate Küche
  • Geschirrspüler
  • Toaster
  • Mikrowelle
  • Kühlschrank
  • Kaffeemaschine (Filter)
  • Gefriermöglichkeit
Bad/Sanitär
  • Haartrockner
  • Dusche
  • Handtücher
Betten
  • Bettwäsche

Verfügbarkeit prüfen

Wählen Sie Ihren Reisezeitraum aus, um den Preis zu sehen!
>vorheriges Objekt
Jahresansicht
Mär 2026
Mo Di Mi Do Fr Sa So
            1
2 3 4 5 6 7 8
9 10 11 12 13 14 15
16 17 18 19 20 21 22
23 24 25 26 27 28 29
30 31          
Apr 2026
Mo Di Mi Do Fr Sa So
    1 2 3 4 5
6 7 8 9 10 11 12
13 14 15 16 17 18 19
20 21 22 23 24 25 26
27 28 29 30      
             
Mai 2026
Mo Di Mi Do Fr Sa So
        1 2 3
4 5 6 7 8 9 10
11 12 13 14 15 16 17
18 19 20 21 22 23 24
25 26 27 28 29 30 31
             

Lage • Landerhauser-Hof - Ferienwohnung Kaiserblick, 90 qm, zwei Schlafzimmer, Balkon

Landerhausen 2, Schleching, Oberbayern
In der Umgebung
  • Bahnhof 15,0 km
  • Stadt-/Ortsmitte 1,0 km
  • Haltestelle 500 m
  • See 1,0 km
  • Skilift 8,0 km
  • Bergbahn 8,0 km
  • Langlaufloipe 10 m
Reisende, die sich die Unterkunft Landerhauser-Hof - Ferienwohnung Kaiserblick, 90 qm, zwei Schlafzimmer, Balkon angesehen haben, haben diese Unterkünfte gebucht
Merken
Bauernhof
5 Pers.
Schleching
Oberbayern
4,8 Ausgezeichnet 1 Bewertung
Merken
Bauernhof
6 Pers.
Schleching
Oberbayern
5,0 Ausgezeichnet 1 Bewertung