Vorheriges Objekt Zurück zur Liste Nächstes Objekt
Ferienwohnung

Wohnambiente - Ferienwohnung DG (50 qm) für bis zu 5 Personen mit Smart-TV und vollständig ausgestatteter Küche

Freiheitsstr. 2, Selb, Franken - Tolle Lage - Karte anzeigen
0,0
basierend auf 0 Bewertungen
Personen 6
Schlafzimmer 3
Ferienwohnung
Selb
Objekt-Nr.:
Merken
Teilen

  • Internet
  • TV
  • Terrasse
  • Mikrowelle
  • Geschirrspüler
  • Gefriermöglichkeit
  • Waschmaschine
  • Trockner
  • Haustiere nicht erlaubt
  • Nichtraucher
  • E-Auto Ladestation
  • Safe

Beschreibung

Wohnambiente – Wohnungen mit Wohnambiente zum wohlfühlen für Zuhause, Freizeit und Beruf.
Unser liebevoll gestaltetes Ferienhaus ist mit seiner Lage zwischen Schulzentrum und Goldberg zentral für viele Anlaufpunkte in Selb gelegen.
Bei der Ausstattung und Gestaltung der Wohnungen und Zimmer, haben wir viel Wert auf ein ansprechendes, modernes und gemütliches Ambiente, welches zum Verweilen einlädt, gelegt.
Durch die Unterteilung in drei separate Wohnungen ist für jeden Reisezweck die passende Größe und Ausstattung flexibel für ein bis 13 Personen verfügbar, egal ob Sie einen Familienurlaub, Männertrip, Mädelsausflug, als Monteur geschäftlich unterwegs sind oder als Block-/ Fachschüler ein Zuhause auf Zeit benötigen. Gerne können Sie auch das komplette Haus auf Anfrage für Ihre Reise buchen.




Konditionen

Die Zahlung erfolgt per Überweisung.
50% Vorauszahlung bei Buchung, 100% bis Anreisetag.
Stornierungen bis 14 Tage vor Anreise sind kostenfrei, Stornierungen zwischen 14-7 Tagen vor der Anreise werden mit 50% der Gesamtkosten berechnet, Stornierungen in den 7 Tagen vor der Anreise werden mit 100% der Gesamtkosten berechnet.

Unser liebevoll eingerichtetes Apartment im Dachgeschoss bietet für Ihren Aufenthalt im schönen Fichtelgebirge folgende Komfortausstattung:

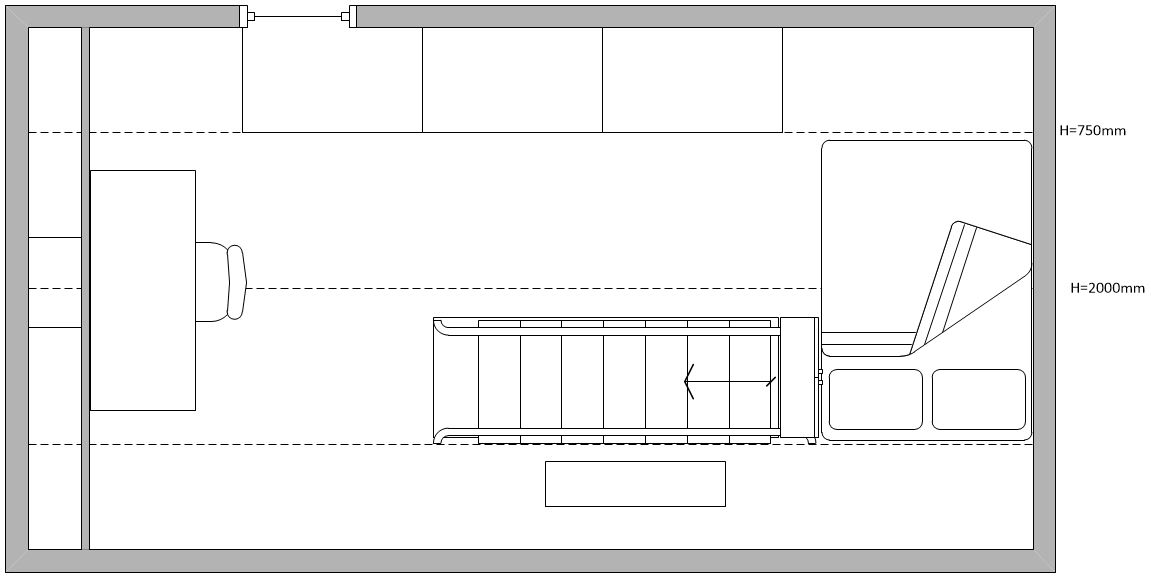
2 1/2-Zimmer + Küche und Badezimmer mit ca. 50m² für bis zu 5 Personen

Die Wohn-/Schlafräume sind in zwei separate Wohnbereiche unterteilt welche mit Keycard abschließbar.
Wohnbereich1:
Der erste Wohnbereich verfügt über zwei getrennt stehende Hotel-Boxspringbetten (90x210cm), Schreibtisch, Kleiderschrank mit Hotelsafe und 50-Smart-TV mit Ambilight
Wohnbereich2:
Highlight hierbei ist, dass das eigene Reich sich auf zwei Etagen im Atelier-Stil verteilt. Es gibt ein Wohnzimmer im 2.OG mit bequemer Schlafcouch (120x200cm), sowie 43-Smart-TV mit Ambilight und ein großen Schlafboden mit Schlaf-/Arbeitszimmer mit Französischen Bett (140x200cm), Schreibtisch und 26-Smart-TV im Dachgeschoss.

Um auch für das leibliche Wohl sorgen zu können, erwartet Sie eine moderne vollständig ausgestattete Küche mit allen gängigen Küchengeräten und -utensilien.
Das Bad ist mit mit Regendusche und Handbrause, WC, Waschbecken, Handtuchtrockner und Haarföhn ausgestattet.
Ein weiteres Gäste-WC steht im Erdgeschoss zur allgemeinen Benutzung zur Verfügung.

Standardmäßig werden die Zimmer bei Anreise einmalig mit frischer Bettwäsche, Handtüchern, Duschvorleger, Duschgel, Kaffee und Gewürzen der angemeldeten Personenzahl entsprechend ausgestattet. Zusätzliche Zwischenreinigung/Wechsel nach Vereinbarung gerne möglich.

Konditionen

Die Anreise ist ab 15:00Uhr durch keyless entry (temporärer Code für die Haustür und RFID-Karten für die Apartments) rund um die Uhr (24/7) möglich und erfolgt auf Wunsch kontaktlos.
Die Abreise ist bis spätestens 10:00Uhr erforderlich.
Andere An- und Abreisezeiten sind nach Rücksprache möglich.
Haustiere sind nicht erlaubt.
Nichtraucher Wohnung.

kostenfreie Inklusivleistungen:
- Nutzung LAN/WLAN/Internet unbegrenzt
- Nutzung Waschmaschine/Trockner
- Nutzung E-Bike Ladestation
- 1x Bettwäsche pro Person bei Anreise
- 1x Handtücher pro Person
- 1x Startpaket FeWo (Kaffee, Gewürze, Reinigungsmittel, Duschgel, Toilettenpapier)


Folgende Zusatzleistungen sind auf Anfrage verfügbar:
- Baby Reisebett: auf Anfrage
- Zustellbett: auf Anfrage
- zusätzliche Bettwäsche
- zusätzliche Handtücher
- Gästehausschuhe (Neu, Frottee)
- Zwischenreinigung (inkl. Bettwäsche und Handtücher)
- Brötchen- Getränke- und Einkaufsdienst: auf Anfrage
- Nutzung E-Auto Ladestation: auf Anfrage

Gesamte Beschreibungweniger anzeigen

Ausstattung

Leistungen
  • Brötchenservice
Allgemein
  • Rauchmelder
  • Heizung
  • Schreibtisch
  • Haustiere nicht erlaubt
  • Nichtraucher
  • Trockner
  • Waschmaschine
  • Terrasse
  • Safe
  • E-Auto Ladestation
Unterhaltung
  • Kabel/Sat
  • TV
  • Internet
Küche
  • Backofen
  • separate Küche
  • Geschirrspüler
  • Toaster
  • Mikrowelle
  • Kaffeemaschine (Filter)
  • Gefriermöglichkeit
Bad/Sanitär
  • Haartrockner
  • Dusche/WC
  • Handtücher
Betten
  • Reise-/Kinderbett
  • Einzelbett
  • getrennt stehende Betten
  • französisches Bett
  • Bettwäsche

Verfügbarkeit prüfen

Wählen Sie Ihren Reisezeitraum aus, um den Preis zu sehen!
>vorheriges Objekt
Jahresansicht
Mär 2026
Mo Di Mi Do Fr Sa So
            1
2 3 4 5 6 7 8
9 10 11 12 13 14 15
16 17 18 19 20 21 22
23 24 25 26 27 28 29
30 31          
Apr 2026
Mo Di Mi Do Fr Sa So
    1 2 3 4 5
6 7 8 9 10 11 12
13 14 15 16 17 18 19
20 21 22 23 24 25 26
27 28 29 30      
             
Mai 2026
Mo Di Mi Do Fr Sa So
        1 2 3
4 5 6 7 8 9 10
11 12 13 14 15 16 17
18 19 20 21 22 23 24
25 26 27 28 29 30 31
             

Lage • Wohnambiente - Ferienwohnung DG (50 qm) für bis zu 5 Personen mit Smart-TV und vollständig ausgestatteter Küche

Freiheitsstr. 2, Selb, Franken
Reisende, die sich die Unterkunft Wohnambiente - Ferienwohnung DG (50 qm) für bis zu 5 Personen mit Smart-TV und vollständig ausgestatteter Küche angesehen haben, haben diese Unterkünfte gebucht