Bauernhof

Ferienglück - Ferienglück .3

, Arriach, Kärnten - Tolle Lage - Karte anzeigen
0,0
basierend auf 0 Bewertungen
Personen 9
Badezimmer 3
Wohnfläche 89 m²
Bauernhof
Arriach
Objekt-Nr.:
Merken
Teilen

  • Internet
  • TV
  • Balkon
  • Grillmöglichkeit
  • Mikrowelle
  • Dusche
  • Haustiere nicht erlaubt
  • Nichtraucher

Beschreibung

Gemütliches, rustikales Bauernhaus Vidmar. 4 Wohnungen im Ferienhaus. Im Ortsteil Innerteuchen, 6.5 km vom Zentrum von Arriach, 18 km vom Zentrum von Feldkirchen, 23 km vom Zentrum von Villach, alleinstehende Lage am Hang. Zur Mitbenutzung: Grundstück 5'000 m2 mit Rasen und Bäumen, Liegewiese. Tischtennis, Sitzplatz, Gartenmöbel, Grill (Rutschbahn, Schaukel). Im Hause: Trampolin, Zentralheizung. Parkplatz beim Haus. Einkaufsgeschäft 6.5 km, Restaurant 6.5 km, Bushaltestelle Innerteuchen Neuwirth 1.2 km, See Afritzer See 14 km. Wanderwege ab Haus 50 m. Bekannte Seen in der Umgebung sind gut erreichbar: Ossiacher See 15 km, Faaker See 25 km, Wörther See 32 km.

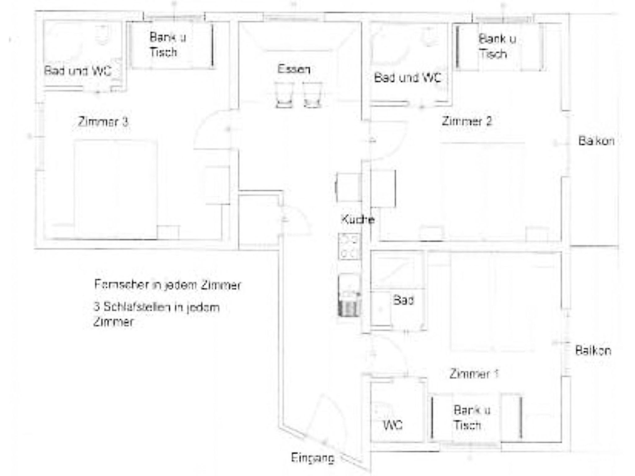
Ferienglück, 4-Zimmer-Wohnung 89 m2 im 1. Stock. Objekt geeignet für 6 Erwachsene + 3 Kinder. Geräumig und hell, komfortabel eingerichtet: 1 Doppelzimmer mit 1 Doppelbett und 1 Wandklappbett (80 cm, Länge 180 cm), Dusche/WC, Sat-TV und Flachbildschirm. 1 Doppelzimmer mit 1 Doppelbett und 1 Wandklappbett (80 cm, Länge 180 cm), Dusche/WC, Sat-TV und Flachbildschirm. Ausgang zum Balkon. 1 Doppelzimmer mit 1 Doppelbett und 1 Wandklappbett (80 cm, Länge 180 cm), sep. WC, Dusche, Sat-TV und Flachbildschirm. Ausgang zum Balkon. Küche (Backofen, 4 Glaskeramikplatten, Toaster, Wasserkocher, Mikrowelle, elektrische Kaffeemaschine) mit Esstisch. Parkettboden. Balkonmöbel. Schöne Sicht auf die Berge. Zur Verfügung: Internet (Wireless LAN, gratis). Bitte beachten: geeignet für Familien. Nichtraucher-Unterkunft.

Gesamte Beschreibungweniger anzeigen

Ausstattung

Allgemein
  • Grillmöglichkeit
  • Haustiere nicht erlaubt
  • Nichtraucher
  • Balkon
Unterhaltung
  • Internet
  • TV
Küche
  • Backofen
  • Mikrowelle
Bad/Sanitär
  • Dusche

Verfügbarkeit prüfen

Wählen Sie Ihren Reisezeitraum aus, um den Preis zu sehen!
>vorheriges Objekt
Jahresansicht
Mär 2026
Mo Di Mi Do Fr Sa So
            1
2 3 4 5 6 7 8
9 10 11 12 13 14 15
16 17 18 19 20 21 22
23 24 25 26 27 28 29
30 31          
Apr 2026
Mo Di Mi Do Fr Sa So
    1 2 3 4 5
6 7 8 9 10 11 12
13 14 15 16 17 18 19
20 21 22 23 24 25 26
27 28 29 30      
             
Mai 2026
Mo Di Mi Do Fr Sa So
        1 2 3
4 5 6 7 8 9 10
11 12 13 14 15 16 17
18 19 20 21 22 23 24
25 26 27 28 29 30 31
             

Lage • Ferienglück - Ferienglück .3

, Arriach, Kärnten
Reisende, die sich die Unterkunft Ferienglück - Ferienglück .3 angesehen haben, haben diese Unterkünfte gebucht
Merken
89 m²
Bauernhof
9 Pers.
Arriach
Kärnten