Ferienwohnung

Casa Pignia - Roth, (Laax GR). 3-Zimmerwohnung

Via Strada, Laax, Graubünden - Tolle Lage - Karte anzeigen
0,0
basierend auf 0 Bewertungen
Personen 5
Schlafzimmer 2
Badezimmer 1
Wohnfläche 78 m²
Ferienwohnung
Laax
Objekt-Nr.:
Merken
Teilen

  • Internet
  • Balkon
  • Mikrowelle
  • Geschirrspüler
  • Badewanne
  • Waschmaschine
  • Trockner
  • Haustiere nicht erlaubt
  • Nichtraucher

Beschreibung

Das Casa Pignia liegt an ruhiger und gut erschlossener Lage (4 Minuten Fussweg zur Busstation, 5 Minuten ins Dorfzentrum, 7 Minuten zum Laaxersee).

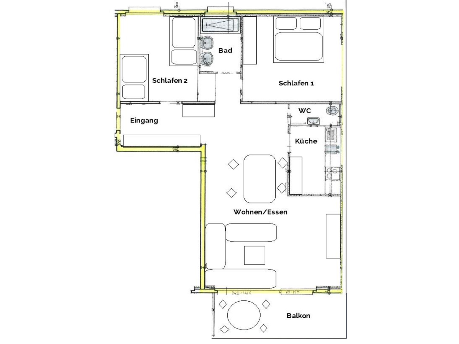
Praktisch eingerichtete 3-Zimmer Ferienwohnung in Laax (78 m2) mit 5 Betten.

Die Wohnung verfügt über einen guten Grundriss und ist sehr gepflegt. Im Eingangsbereich befinden sich diverse Einbauschränke sowie eine offene Garderobe. WLAN und Kabel-TV sind eingerichtet und stehen zur Verfügung.

Die Küche ist voll ausgestattet mit Backofen, Mikrowelle, Geschirrspüler, Kühlschrank, Gefrierfach und Delizio Kaffeemaschine. Fondue Set, Raclette Ofen und Toaster sind vorhanden.

Dem Wohnzimmer ist ein ca. 9 m2 grosser, gedeckter Südbalkon vorgelagert.

Das Doppelschlafzimmer (2 Matrazen à 90 cm breit) und das Dreibettzimmer (Einzelbett 140 cm breit und Etagenbett) sind geräumig eingerichtet mit genügend Ablageflächen und Stauraum.

Das Badezimmer ist mit Wanne und Doppellavabo ausgestattet. Das WC befindet sich in einer separaten Nasszelle.

Ein Skiraum mit Schuhtrockner sowie eine Waschküche mit Waschmaschine, Tumbler und Gebläsetrockner sind im Haus zur Mitbenutzung vorhanden. Fahrräder können im Skiraum abgestellt werden. Zur Wohnung gehört eine abschliessbare Garagenbox.


Konditionen und Extras
Haustiere sind nicht erlaubt. In der Wohnung darf nicht geraucht werden.

Ausstattung
2 Schlafräume, Babybett, Babyhochstuhl, Backofen, Balkon, Fondue-Set, Garten, Geschirrspüler, Haustiere nicht erlaubt, Internetverbindung, Kaffeemaschine, Kinderbett, Küche separat, Küchenwäsche, Kühlschrank, Mikrowelle, Nichtraucherzimmer-/wohnung, Online buchbar, Parking, Raclette-Set, Töpfe Pfannen Geschirr, TV, Wäschetrockner, Wäschetrockner im Haus, Waschmaschine, Waschmaschine im Haus, Wasserkocher, WiFi

Badezimmer
Anzahl Badezimmer: 1, Bad oder Dusche/WC, Badewanne, Dusche, Haartrockner, Separates WC

Dienstleistungen
Garage, Haustiere nicht erlaubt, Parkplatz

Lage
Entfernung zum Flughafen (in km): 90, Entfernung zum Golf (in km): 1.7, Entfernung zum nächsten Skilift (in km): 1.8, Entfernung zum Natureisfeld (in km): 0.4, Entfernung zum See (in km): 0.4, Entfernung zur Dorfmitte (in km): 0.3, Entfernung zur nächsten Haltestelle (in km): 0.2, Freistehendes Gebäude, Mit öffentlichen Verkehrsmitteln erreichbar, Ruhige Umgebung

Stockwerk
1. Etage

Unterkunftstyp
Ferienwohnung

Belegung
1-5 Personen
1-5 Erwachsene
0-4 Kinder (0-17 Jahr(e))

Gesamte Beschreibungweniger anzeigen

Ausstattung

Allgemein
  • Haustiere nicht erlaubt
  • Nichtraucher
  • Trockner
  • Waschmaschine
  • Balkon
Unterhaltung
  • Internet
  • Kabel/Sat
Küche
  • Backofen
  • Kaffeemaschine (Filter)
  • Kühlschrank
  • Mikrowelle
  • Geschirrspüler
Bad/Sanitär
  • Haartrockner
  • Badewanne
  • Badewanne/WC

Verfügbarkeit prüfen

Wählen Sie Ihren Reisezeitraum aus, um den Preis zu sehen!
>vorheriges Objekt
Jahresansicht
Jan 2026
Mo Di Mi Do Fr Sa So
      1 2 3 4
5 6 7 8 9 10 11
12 13 14 15 16 17 18
19 20 21 22 23 24 25
26 27 28 29 30 31  
             
Feb 2026
Mo Di Mi Do Fr Sa So
            1
2 3 4 5 6 7 8
9 10 11 12 13 14 15
16 17 18 19 20 21 22
23 24 25 26 27 28  
             
Mär 2026
Mo Di Mi Do Fr Sa So
            1
2 3 4 5 6 7 8
9 10 11 12 13 14 15
16 17 18 19 20 21 22
23 24 25 26 27 28 29
30 31          

Lage • Casa Pignia - Roth, (Laax GR). 3-Zimmerwohnung

Via Strada, Laax, Graubünden
In der Umgebung
  • Entfernung See 400 m
  • Nächster Flughafen (Entfernung) 90,0 km
Reisende, die sich die Unterkunft Casa Pignia - Roth, (Laax GR). 3-Zimmerwohnung angesehen haben, haben diese Unterkünfte gebucht
Merken
140 m²
Ferienhaus
8 Pers.
1 Schlafz.
Laax
Graubünden
4,2 Sehr Gut 1 Bewertung
Merken
66 m²
Ferienwohnung
5 Pers.
2 Schlafz.
Laax
Graubünden
Merken
80 m²
Ferienwohnung
6 Pers.
2 Schlafz.
Laax
Graubünden
2,4 Befriedigend 1 Bewertung
Merken
Ferienwohnung
6 Pers.
2 Schlafz.
Laax
Graubünden