Ferienwohnung

Heuboden

Binzwangen 33, Colmberg, Franken - Tolle Lage - Karte anzeigen
0,0
basierend auf 0 Bewertungen
Personen 6
Schlafzimmer 3
Badezimmer 1
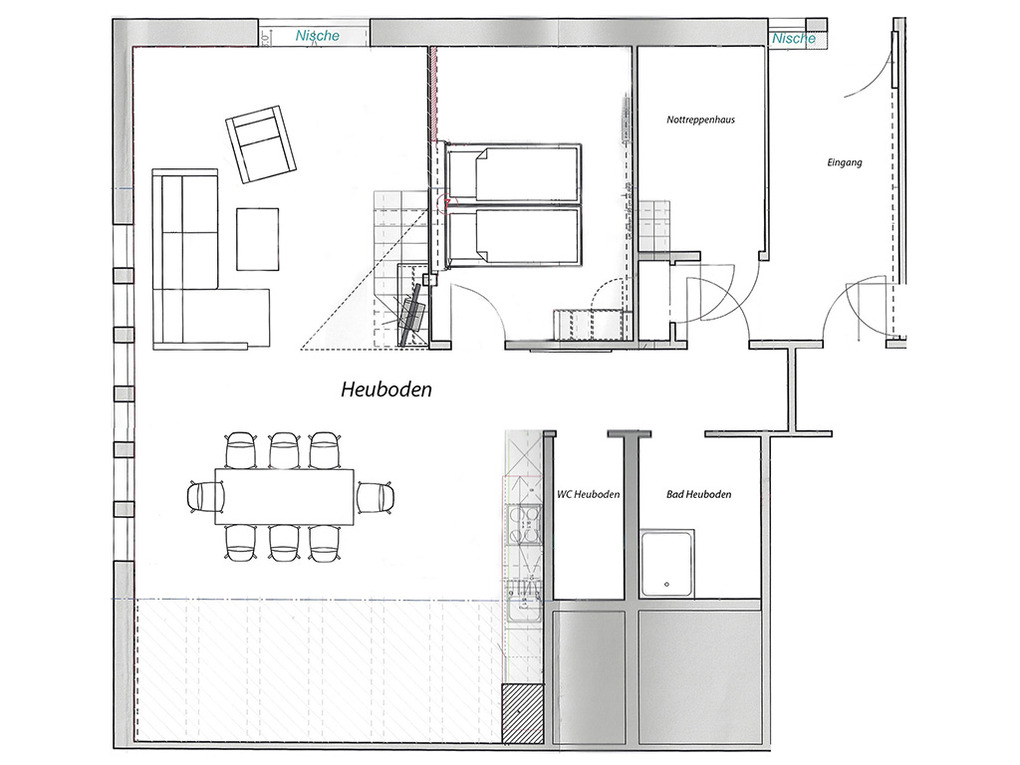
Wohnfläche 95 m²
Ferienwohnung
Colmberg
Objekt-Nr.:
Merken
Teilen

  • Internet
  • TV
  • Balkon
  • Grillmöglichkeit
  • Mikrowelle
  • Geschirrspüler
  • Gefriermöglichkeit
  • Dusche
  • Waschmaschine
  • Trockner
  • Haustier erlaubt
  • Nichtraucher

Beschreibung

Unsere Ferienwohnung Heuboden in der fränkischen Wohnscheune umfasst 95m². Die Ferienwohnung verfügt über einen Wohn- bzw. Essraum mit Küche, Esstisch, einer Couch sowie TV. Außerdem verfügt sie über ein Eltern und 2 Kinderschlafzimmer, sowie einem Badezimmer und einem extra WC.
Ein Balkon mit Sitzgelegenheit ist zudem vorhanden.
Die Wohnung Heuboden befindet sich im ersten Stock unserer circa zweihundert Jahre alten historischen Scheune. Auch hier übermittelt das Fachwerkambiente einen ganz besonderen, einladenden Charme. Ausgestattet mit modernen Möbeln garantiert die Wohnung einen angenehmen Aufenthalt. Zum draußen Sitzen und Sonnenbaden lädt der Sonnenbalkon ein, welcher direkt an den Wohn- und Essbereich angeschlossen ist.

Unsere Ferienwohnung Heuboden in der fränkischen Wohnscheune umfasst 95m². Die Ferienwohnung verfügt über einen Wohn- bzw. Essraum mit Küche, Esstisch, einer Couch sowie TV. Außerdem verfügt sie über ein Eltern und 2 Kinderschlafzimmer, sowie einem Badezimmer und einem extra WC.
Ein Balkon mit Sitzgelegenheit ist zudem vorhanden.

Gesamte Beschreibungweniger anzeigen

Ausstattung

Leistungen
  • Brötchenservice
  • Hochstuhl
Allgemein
  • Balkon
  • Abstellraum
  • Rauchmelder
  • Heizung
  • Haustier erlaubt
  • Waschmaschine
  • Trockner
  • Nichtraucher
  • Grillmöglichkeit
Unterhaltung
  • TV
  • Internet
  • TV-Flachbild
Küche
  • separate Küche
  • Geschirrspüler
  • Toaster
  • Mikrowelle
  • Kühlschrank
  • Kaffeemaschine (Filter)
  • Gefriermöglichkeit
  • Backofen
Bad/Sanitär
  • Dusche
  • Handtücher
  • Badewanne/WC
  • Gäste-WC
  • Haartrockner
Betten
  • Reise-/Kinderbett
  • Einzelbett
  • Doppelbett
  • Bettwäsche

Verfügbarkeit prüfen

Wählen Sie Ihren Reisezeitraum aus, um den Preis zu sehen!
>vorheriges Objekt
Jahresansicht
Dez 2025
Mo Di Mi Do Fr Sa So
1 2 3 4 5 6 7
8 9 10 11 12 13 14
15 16 17 18 19 20 21
22 23 24 25 26 27 28
29 30 31        
             
Jan 2026
Mo Di Mi Do Fr Sa So
      1 2 3 4
5 6 7 8 9 10 11
12 13 14 15 16 17 18
19 20 21 22 23 24 25
26 27 28 29 30 31  
             
Feb 2026
Mo Di Mi Do Fr Sa So
            1
2 3 4 5 6 7 8
9 10 11 12 13 14 15
16 17 18 19 20 21 22
23 24 25 26 27 28  
             

Lage • Heuboden

Binzwangen 33, Colmberg, Franken
Reisende, die sich die Unterkunft Heuboden angesehen haben, haben diese Unterkünfte gebucht
Merken
115 m²
Ferienhaus
6 Pers.
3 Schlafz.
Colmberg
Franken
Merken
Ferienwohnung
6 Pers.
3 Schlafz.
Colmberg
Franken
Merken
95 m²
Ferienwohnung
6 Pers.
3 Schlafz.
Colmberg
Franken
Merken
95 m²
Ferienwohnung
6 Pers.
3 Schlafz.
Colmberg
Franken