Vorheriges Objekt Zurück zur Liste Nächstes Objekt
Ferienwohnung

Haus Hermann Nössig - Appartement für 3-6 Personen

Runhof 192, Längenfeld, Tirol - Tolle Lage - Karte anzeigen
4,9
Ausgezeichnet
basierend auf 25 Bewertungen
Personen 6
Schlafzimmer 3
Badezimmer 3
Wohnfläche 80 m²
Ferienwohnung
Längenfeld
Objekt-Nr.:
Merken
Teilen

  • Internet
  • TV
  • Terrasse
  • Grillmöglichkeit
  • Geschirrspüler
  • Gefriermöglichkeit
  • Dusche
  • Haustier erlaubt
  • Nichtraucher

Beschreibung

Grüß Gott in unserem ruhig gelegenen Haus am Waldrand mit herrlichem Blick auf die Ötztaler Bergwelt. Genießen Sie in Ihrer grosszügigen Ferienwohnung im Parterre mit der herrlich, sonnigen Terrasse Ihr Zuhause auf Zeit für erholsame Ferientage. Im Sommer locken die herrlichen Wander-und Radtouren, oder ein Ausflüg über das Timmelsjoch nach Südtirol. Im Winter ist das Top-Skigebiet Sölden nur ca. 10 km entfernt und mit dem Gratis-Skibus stressfrei zu erreichen (die Haltestelle ist ca. 200 m entfernt). Wir freuen uns auf Ihren Besuch!

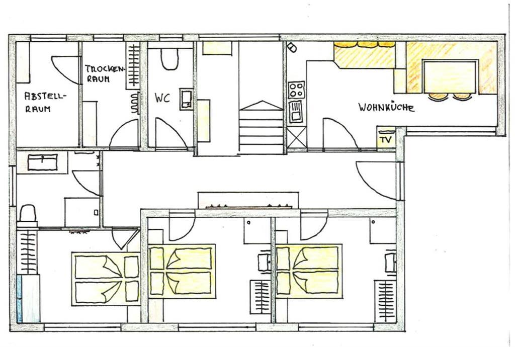
Unser liebevoll mit viel Holz eingerichtetes Appartement befindet sich im Parterre und besitzt eine grosszügige Terrasse und einen Garten mit Liegewiese. Es besteht aus: 1 Doppelzimmer mit DU/WC, 2 Doppelzimmer mit Dusche, zusätzlich 1 seperates WC, 1 geräumige Wohnküche mit Sitz- und Essecke, Sat-TV. Trockenraum für Ski- und Wanderbekleidung mit Schuhtrockner. Größe ca. 90 m².

Gesamte Beschreibungweniger anzeigen

Ausstattung

Leistungen
  • Brötchenservice
Allgemein
  • Abstellraum
  • Haustier erlaubt
  • Grillmöglichkeit
  • Nichtraucher
  • Terrasse
Unterhaltung
  • Kabel/Sat
  • TV
  • Radio
  • Internet
Küche
  • Backofen
  • Herd-Ceran, 4 Zonen
  • separate Küche
  • Geschirrspüler
  • Kühlschrank
  • Kaffeemaschine (Filter)
  • Gefriermöglichkeit
Bad/Sanitär
  • Haartrockner
  • Dusche
  • Badewanne/WC
  • Handtücher
Betten
  • Doppelbett
  • Bettwäsche

Verfügbarkeit prüfen

Wählen Sie Ihren Reisezeitraum aus, um den Preis zu sehen!
Mär 2026
Mo Di Mi Do Fr Sa So
            1
2 3 4 5 6 7 8
9 10 11 12 13 14 15
16 17 18 19 20 21 22
23 24 25 26 27 28 29
30 31          
Apr 2026
Mo Di Mi Do Fr Sa So
    1 2 3 4 5
6 7 8 9 10 11 12
13 14 15 16 17 18 19
20 21 22 23 24 25 26
27 28 29 30      
             
Mai 2026
Mo Di Mi Do Fr Sa So
        1 2 3
4 5 6 7 8 9 10
11 12 13 14 15 16 17
18 19 20 21 22 23 24
25 26 27 28 29 30 31
             

Lage • Haus Hermann Nössig - Appartement für 3-6 Personen

Runhof 192, Längenfeld, Tirol
Reisende, die sich die Unterkunft Haus Hermann Nössig - Appartement für 3-6 Personen angesehen haben, haben diese Unterkünfte gebucht
Merken
49 m²
Ferienwohnung
6 Pers.
2 Schlafz.
Längenfeld
Tirol
4,6 Ausgezeichnet 38 Bewertungen
Merken
95 m²
Ferienwohnung
6 Pers.
3 Schlafz.
Längenfeld
Tirol
3,5 Sehr Gut 2 Bewertungen
Merken
112 m²
Ferienwohnung
11 Pers.
4 Schlafz.
Längenfeld
Tirol
4,7 Ausgezeichnet 65 Bewertungen
Merken
350 m²
Ferienhaus
25 Pers.
9 Schlafz.
Längenfeld
Tirol
4,2 Sehr Gut 2 Bewertungen