Ferienwohnung

DU.Appartement

Reizegg 18, Dienten am Hochkönig, Salzburger Land - Tolle Lage - Karte anzeigen
4,8
Ausgezeichnet
basierend auf 1 Bewertung
Personen 4
Schlafzimmer 1
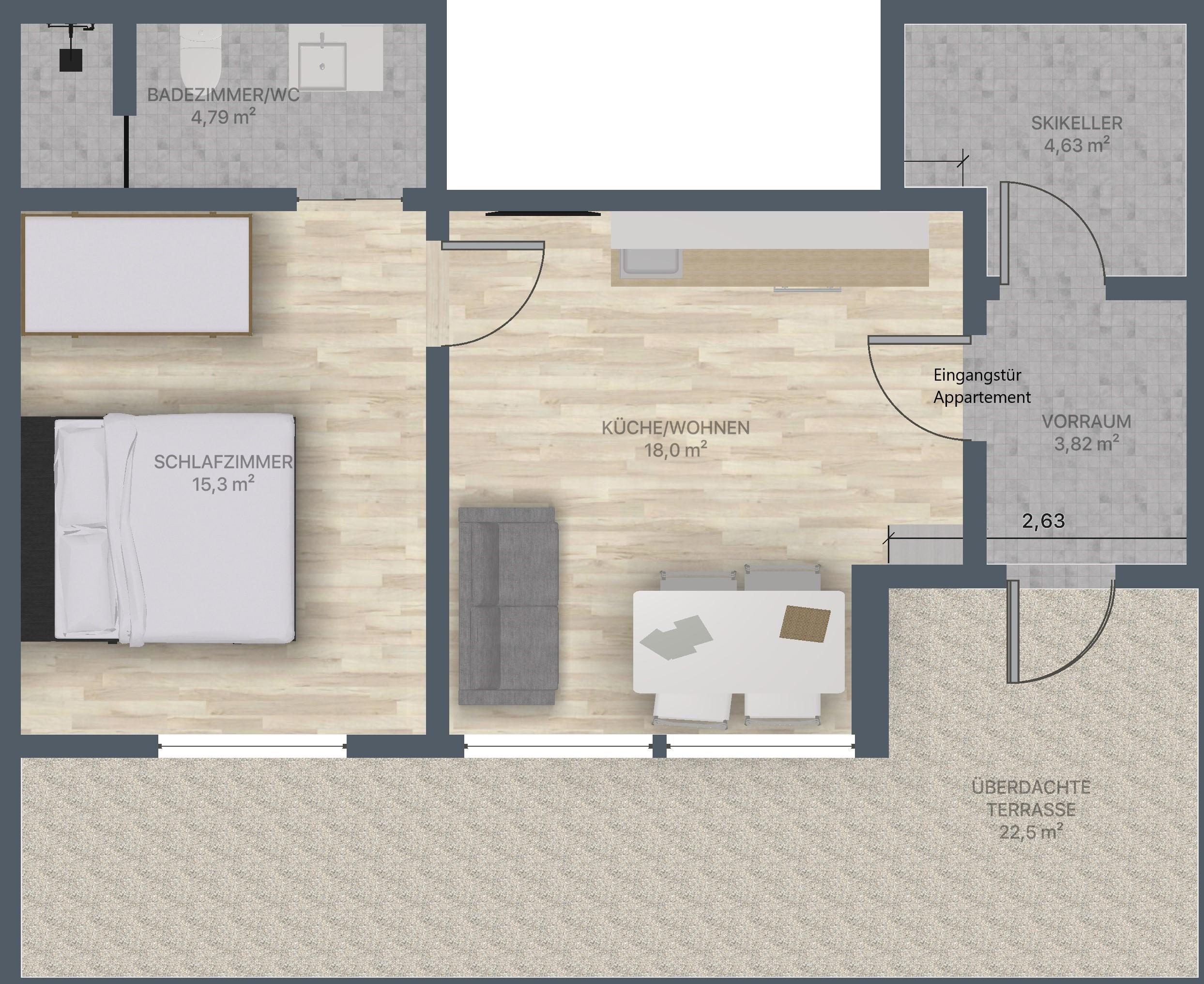
Wohnfläche 46 m²
Ferienwohnung
Dienten am Hochkönig
Objekt-Nr.:
Merken
Teilen

  • Internet
  • TV
  • Mikrowelle
  • Geschirrspüler
  • Gefriermöglichkeit
  • Dusche
  • Haustiere nicht erlaubt
  • Nichtraucher

Beschreibung

Hier bist DU.goldrichtig!
Ein Sprüchlein sagt: Über 1000 Höhenmeter sind alle per DU.!
Das idyllische Dorf Dienten liegt am Fuße des Hochkönigs auf 1071 Meter Seehöhe. Nur wenige Gehminuten vom Ortszentrum entfernt, befindet sich unser DU.Appartement
Der optimale Ausgangspunkt für einen perfekten Skitag in der Region Hochkönig.  
Das DU.Appartement verfügt über folgende Räumlichkeiten:

• voll ausgestattete Küchenzeile im gemütlichen Wohn-Essbereich mit Platz für 4 Personen, 
• 1 Schlafzimmer mit komfortablem Doppelbett sowie einem Etagenbett (ideale Belegung: 2 Erwachsene, 2 Kinder
• Badezimmer mit begehbarer Dusche und WC
Weitere Annehmlichkeiten:

• SKI in - SKI out, direkter Einstieg in Skivergnügen über den Skiweg Zachhof/Babylift und Bürglalmbahn-Talstation!
• nur wenige Gehminuten ins Dorfzentrum 
• kostenfreies WLAN
• 1 PKW-Parkplatz
• Südseitige Terrasse mit traumhaftem Ausblick
• ruhig gelegen und bietet damit Erholung pur
Wir freuen uns auf euch!
Herzlichst Familie Riedl

ein Appartement für bis zu 2 Erwachsene und 2 Kinder, ca. 46m², eine voll ausgestattete Wohnküche mit Essbereich, 1 Schlafzimmer (1 Doppelbett, 1 Etagenbett), Badezimmer mit Dusche und WC, TV, WLAN, Nichtraucher, keine Haustiere

Gesamte Beschreibungweniger anzeigen

Ausstattung

Allgemein
  • Sitzgruppe
  • Nichtraucher
  • Haustiere nicht erlaubt
Unterhaltung
  • TV
  • Internet
Küche
  • Gefriermöglichkeit
  • Herd-Ceran, 4 Zonen
  • separate Küche
  • Dunstabzug
  • Geschirrspüler
  • Mikrowelle
  • Kühlschrank
  • Backofen
Bad/Sanitär
  • Haartrockner
  • Dusche
  • Dusche/WC
  • Seife oder Duschgel
  • Handtücher
Betten
  • Bettwäsche

Verfügbarkeit prüfen

Wählen Sie Ihren Reisezeitraum aus, um den Preis zu sehen!
>vorheriges Objekt
Jahresansicht
Dez 2025
Mo Di Mi Do Fr Sa So
1 2 3 4 5 6 7
8 9 10 11 12 13 14
15 16 17 18 19 20 21
22 23 24 25 26 27 28
29 30 31        
             
Jan 2026
Mo Di Mi Do Fr Sa So
      1 2 3 4
5 6 7 8 9 10 11
12 13 14 15 16 17 18
19 20 21 22 23 24 25
26 27 28 29 30 31  
             
Feb 2026
Mo Di Mi Do Fr Sa So
            1
2 3 4 5 6 7 8
9 10 11 12 13 14 15
16 17 18 19 20 21 22
23 24 25 26 27 28  
             

Lage • DU.Appartement

Reizegg 18, Dienten am Hochkönig, Salzburger Land
Reisende, die sich die Unterkunft DU.Appartement angesehen haben, haben diese Unterkünfte gebucht
Merken
90 m²
Ferienwohnung
6 Pers.
2 Schlafz.
Dienten am Hochkönig
Salzburger Land
4,9 Ausgezeichnet 4 Bewertungen
Merken
62 m²
Ferienwohnung
5 Pers.
1 Schlafz.
Dienten am Hochkönig
Salzburger Land
Merken
81 m²
Ferienwohnung
6 Pers.
2 Schlafz.
Dienten am Hochkönig
Salzburger Land
5,0 Ausgezeichnet 4 Bewertungen
Merken
55 m²
Ferienwohnung
4 Pers.
1 Schlafz.
Dienten am Hochkönig
Salzburger Land
5,0 Ausgezeichnet 4 Bewertungen