Ferienwohnung

Appartements Ferienwohnungen PFAUSLER Oetz - Fewo Arnika mit 2 getrennten Schlafzimmern

Weiherweg 2, Oetz, Tirol - Tolle Lage - Karte anzeigen
4,8
Ausgezeichnet
basierend auf 1 Bewertung
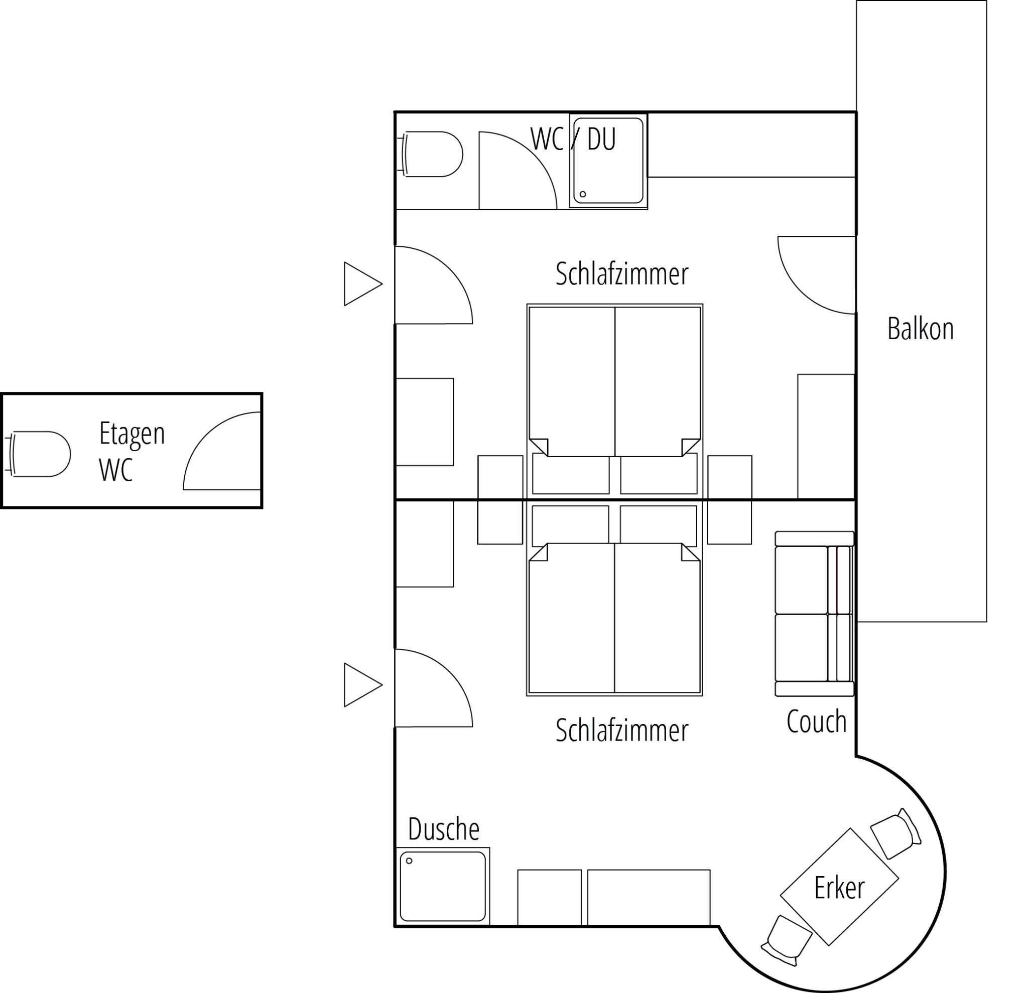
Personen 5
Schlafzimmer 1
Badezimmer 2
Wohnfläche 60 m²
Ferienwohnung
Oetz
Objekt-Nr.:
Merken
Teilen

  • Internet
  • TV
  • Balkon
  • Mikrowelle
  • Geschirrspüler
  • Gefriermöglichkeit
  • Dusche
  • Haustiere nicht erlaubt
  • Nichtraucher

Beschreibung

Gemütliche Ferienwohnungen und Appartements im Ötztal. Unser Gästehaus liegt in zentraler Lage in Oetz.

... unser gemütliches Appartementhaus befindet sich im Herzen von Oetz im Ötztal, in der Nähe von Sölden, im schönen Tirol.

... viele Sportmöglichkeiten wie Skifahren, Snowboarden erwarten Sie im Winterurlaub oder Sie relaxen beim Wellness im Aquadome.

... Familienurlaub pur in unseren konfortablen Ferienwohnungen für 2 bis 5 Personen, Bäckerei mit großer Brotauswahl und Frühstückskarte sowie Supermarkt in der Nähe.

... NEU - KINDERGARTEN für Gäste unseres Appartementhauses INKLUSIVE!
Der Bonus für Gäste von WIDI`s Partnerbetrieben, wir sind dabei !!!
Mitten in der Skiregion Hochoetz erwartet die Gästekinder ein professioneller Kindergarten mit ganztägiger Betreuung. Alle Schneeprinzessinnen und kleine Skikönige ab 2 Jahren (Kinder sollten sauber sein) können hier Spielen, Basteln, Malen und nach Herzenslust Herumtoben. Und sollten mal die Äuglein zufallen, steht ein eigener Schlafraum bereit. Täglich geöffnet von 09:00 bis 16:00 Uhr, Betreuung auch stundenweise möglich, kostenlos für Gäste der „WIDI Partner“

... Schibushaltestelle vor der Haustür. Zum Kennenlernen des gesamten Oetztales empfiehlt sich der ÖTZTAL SKIPASS mit den Schigebieten Hochoetz, Kühtai, Sölden und Gurgl.

... Gute Tipps bei Schi- und Schuhwahl und den geeigneten Schikurs dazu empfiehlt Howdy als geprüfter Tiroler Schilehrer.

Bis bald in Oetz !
Ihre Familie Plattner-Pfausler

Geeignet für 4 Erwachsene oder 2 Erwachsene und 3 Jugendliche .
Große neue Wohnküche mit gemütlicher Sitz-Essecke und Flat-SAT-TV im Parterre sowie separat dazu im ersten Stock 1 Doppelzimmer mit Dusche/WC, Flat-SAT-TV und Balkon und 1 Dreibettzimmer mit eigener Dusche und Erker, Flat-SAT-TV, WC getrennt . Die Schlafzimmer sind direkt nebeneinander doch die Wohnung ist nicht abgeschlossen.

Gesamte Beschreibungweniger anzeigen

Ausstattung

Highlights
  • Blick auf die Berge
Allgemein
  • Balkon
  • Schlafsofa
  • Rauchmelder
  • Heizung
  • Nichtraucher
  • Haustiere nicht erlaubt
Unterhaltung
  • Kabel/Sat
  • TV
  • Internet
  • TV-Flachbild
Küche
  • separate Küche
  • Geschirrspüler
  • Toaster
  • Mikrowelle
  • Kühlschrank
  • Kaffeemaschine (Filter)
  • Backofen
  • Gefriermöglichkeit
Bad/Sanitär
  • Haartrockner
  • Handtücher
  • Seife oder Duschgel
  • Dusche/WC
  • Gäste-WC
  • Dusche
Betten
  • Doppelbett
  • französisches Bett
  • Bettwäsche

Verfügbarkeit prüfen

Wählen Sie Ihren Reisezeitraum aus, um den Preis zu sehen!
Mär 2026
Mo Di Mi Do Fr Sa So
            1
2 3 4 5 6 7 8
9 10 11 12 13 14 15
16 17 18 19 20 21 22
23 24 25 26 27 28 29
30 31          
Apr 2026
Mo Di Mi Do Fr Sa So
    1 2 3 4 5
6 7 8 9 10 11 12
13 14 15 16 17 18 19
20 21 22 23 24 25 26
27 28 29 30      
             
Mai 2026
Mo Di Mi Do Fr Sa So
        1 2 3
4 5 6 7 8 9 10
11 12 13 14 15 16 17
18 19 20 21 22 23 24
25 26 27 28 29 30 31
             

Lage • Appartements Ferienwohnungen PFAUSLER Oetz - Fewo Arnika mit 2 getrennten Schlafzimmern

Weiherweg 2, Oetz, Tirol
In der Umgebung
  • zum Zentrum 400 m
  • zum Bahnhof 6,0 km
  • zum Bäcker 100 m
  • zum Supermarkt 100 m
  • zur Therme 16,0 km
  • zum Restaurant 200 m
  • zur Badestelle/Gewässer 3,0 km
  • zur Tourist-Information 400 m
  • zum Flughafen 50,0 km
  • zur Autobahn 5,0 km
  • zum Wanderweg 200 m
  • zur Bushaltestelle 500 m
  • zum Krankenhaus/Klinik 35,0 km
  • zum Geldautomaten/Bank 400 m
  • zum Radweg 200 m
  • zum Schwimm-/Spaßbad 1,0 km
  • zum Arzt 700 m
  • zum Freizeitpark 6,0 km
  • Höhe über dem Meeresspiegel 820 m
  • zur S-Bahn 6,0 km
  • zur Bergbahn/Seilbahn 1,0 km
  • zur Messe 50,0 km
  • zum Skigebiet 1,0 km
Reisende, die sich die Unterkunft Appartements Ferienwohnungen PFAUSLER Oetz - Fewo Arnika mit 2 getrennten Schlafzimmern angesehen haben, haben diese Unterkünfte gebucht
Merken
78 m²
Ferienwohnung
7 Pers.
2 Schlafz.
Oetz
Tirol
5,0 Ausgezeichnet 8 Bewertungen
Ferienwohnung Piburgersee - Appartement Waldzauber
Merken
90 m²
Ferienwohnung
8 Pers.
4 Schlafz.
Oetz
Tirol
Merken
56 m²
Ferienwohnung
6 Pers.
2 Schlafz.
Oetz
Tirol
4,7 Ausgezeichnet 6 Bewertungen
Merken
64 m²
Ferienwohnung
5 Pers.
2 Schlafz.
Oetz
Tirol
4,8 Ausgezeichnet 35 Bewertungen