Vorheriges Objekt Zurück zur Liste Nächstes Objekt
Ferienwohnung

Ferienwohnung Nr. 3 Gipfelkreuz

Donnersbachwald,88, Donnersbach, Steiermark - Tolle Lage - Karte anzeigen
0,0
basierend auf 0 Bewertungen
Personen 4
Schlafzimmer 1
Badezimmer 1
Wohnfläche 40 m²
Ferienwohnung
Donnersbach
Objekt-Nr.:
Merken
Teilen

  • Internet
  • Terrasse
  • Balkon
  • Mikrowelle
  • Geschirrspüler
  • Gefriermöglichkeit
  • Dusche
  • Haustiere nicht erlaubt
  • Nichtraucher

Beschreibung

Moderne und gemütliche Ferienwohnungen mit Balkon oder Terrasse nahe der Talstation in einem familiär geführten Apartmenthaus mit Wellnessbereich gelegen, genießen Sie nicht nur im Sommer sondern auch im Winter die alpine Umgebung, hier findet jeder zu jeder Jahreszeit das Richtige

Die modern eingerichteten Ferienwohnungen befinden sich 50 Meter von der Talstation der beliebten Riesneralm-Bergbahnen entfernt und sind damit Sommer wie Winter der ideale Ausgangspunkt für Freizeitaktivitäten in der Region.

Die Ferienwohnungen bieten ein eine voll ausgestattete Wohnküche mit ausziehbarer Couch, ein Schlafzimmer mit Doppelbett, Bad und getrenntes WC. In dem liebevoll und familiär geführten Apartmenthaus erwartet Sie weiterhin ein kleiner Wellnessbereich mit Sauna, Infrarotkabine, Biosauna, Solarium (gegen Gebühr), Whirlpool und Fitnessgeräten. Hier finden Sie nicht nur sportliche Aktivitäten sondern auch Ruhe und Erholung.

In jeder Unterkunft lädt ein Balkon oder eine Terrasse zur Südseite zum Verweilen und Entspannen ein. Ein gemeinschaftlicher Garten mit Grünfläche und einer Abgrenzung nach Süden lädt zum Erkunden ein. Nach Norden ist dieser mit verschiedenen Sträuchern bepflanzt. Ein kleiner Kräutergarten, eine Spielwiese bzw. Liegewiese erwarten Sie. Eine Terrasse mit Gartenmöbeln und Sonnenschirme ist ebenfalls vorhanden. Parkplätze können kostenfrei genutzt werden.

Als Extra erhalten Sie vor Ort kostenfrei die Schladming - Dachstein - Sommercard ( 29.05.- 13.10.19) und genießen somit den Großteil der Freizeiteinrichtungen ohne weitere Gebühren. Gern organisiert der Vermieter vor Ort einen Brötchenservice, wo nur das Gebäck bezahlt werden muss. WLAN kann selbstverständlich gratis genutzt werden. Bitte beachten Sie, dass es sich hierbei um Nichtrauchapartments handelt.

Donnersbachwald ist der ideale Ort für einen erholsamen Familienurlaub. Am Ortsrand von Donnersbachwald in den Niederen Tauern gelegen und von herrlicher, ruhiger, waldreicher Bergwelt umgeben auf 1000m Seehöhe an der Talstation der Bergbahn. Das Gebirgsdorf bringt im Sommer und Winter beste Voraussetzungen für sportliche Ambitionen aller Altersgruppen. Für Sportbegeisterte stehen im Sommer zahlreiche Wander- und Mountainbike-Strecken, zwei Sand-Tennisplätze, ein Fischteich und ein Naturbadesee (200m) mit Beachvolleyballplatz und Kinderspielplatz zur Verfügung. Ein rauschender Gebirgsbach, Einkaufsmöglichkeiten in der Ortsmitte in einem kleinen Tante Emma-Laden (ein km), Speiselokale im Umkreis (200m), Pub und Bergbahn (100m) u.v.m. erwarten Sie hier. Wer gerne wandert, kann direkt vom Haus aus starten. Der Putterersee ( Moorsee) und das Schloss Trautenfels sind 20 km entfernt. Doch nicht nur im Sommer sondern auch im Winter warten zahlreiche sportliche Aktivitäten auf Sie. Das gemütliche und übersichtliche Skigebiet mit Kinderskischaukel ist ideal für Kinder und Erwachsene. Mit nur einer richtigen Talstation kommt Ihr Kind stets am richtigen Ort an. Vom Haus aus haben Sie fast alles immer im Blick. Im Winter können Sie hier nicht nur Ski fahren und Snowboarden, sondern auch Langlaufen, Skitouren gehen, Naturbahn rodeln oder Schneeschuh wandern. Die Vermieter freuen sich, Sie bald hier begrüßen zu dürfen.

Entdecken Sie Ihr perfektes Urlaubszuhause in den Ferienwohnungen Hohl in Donnersbachwald, eingebettet in die atemberaubende, ruhige und waldreiche Bergwelt der Niederen Tauern auf 1000m Seehöhe, direkt an der Talstation der Bergbahn. Erleben Sie in unserem liebevoll und familiengeführten Appartementhaus mit seiner zum Süden gerichteten Terrasse und Balkon unvergessliche Momente der Ruhe und Erholung. Unser kleiner Wellnessbereich mit Sauna und Fitnessgeräten steht bereit, Ihren Aufenthalt noch angenehmer zu machen. Ein idealer Ort für Sportbegeisterte aller Art, zu jeder Jahreszeit.

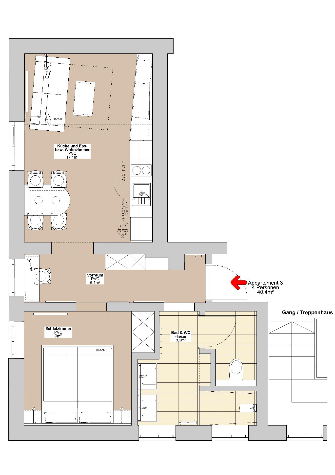
Die in Frage stehende Ferienwohnung befindet sich im zweiten Obergeschoss und erstreckt sich über 40m². Sie zeichnet sich durch eine moderne Wohnküche aus, die mit allem Komfort ausgestattet ist: Einem Ceranfeld, Backofen, Filter-Kaffeemaschine, Wasserkocher, Spülmaschine, Kühlschrank mit Gefrierfach und Mikrowelle. Nebenan verwöhnt ein gemütlicher Essbereich und ein Wohnbereich mit einem Flatscreen-TV und einem Schlafsofa für zwei weitere Personen. Das Schlafzimmer bietet neben einem SAT-TV ein komfortables Doppelbett. Das helle Badezimmer ist mit Doppelwaschbecken, Föhn, Handtuchtrockner und Dusche ausgestattet; das WC ist separat.

Der nach Süden gerichtete Balkon der Ferienwohnung ist eine echte Einladung, die atemberaubende Bergluft und die Sonne zu genießen. Hier kann man bei einem Glas Wein den Tag ausklingen lassen oder morgens mit einer Tasse Kaffee die Ruhe der Natur begrüßen.

In der unmittelbaren Umgebung bieten sich zahlreiche Möglichkeiten zur Freizeitgestaltung. Ein rauschender Gebirgsbach, ein Mini-Markt direkt gegenüber, Speiselokale im Umkreis von 200m, die Bergbahn in 100m Entfernung und der Ausgangspunkt für vielfältige Wanderungen direkt vor Ihrer Haustüre sorgen für Abwechslung und Aktivität im Freien. Nur 200m entfernt liegt der Naturbadesee mit Kinderspielplatz, der Putterersee befindet sich 20 km entfernt, ebenso wie das Schloss Trautenfels.

Lassen Sie den Alltagsstress hinter sich und freuen Sie sich auf einen erholsamen Urlaub in Donnersbachwald bei Familie Huber. Genießen Sie die Bergwelt in vollen Zügen und profitieren Sie dabei zusätzlich von der kostenfreien Schladming-Dachstein-Sommercard für zahlreiche Freizeiteinrichtungen. Wir freuen uns auf Ihren Besuch und sind bereit, Ihren Aufenthalt so angenehm wie möglich zu gestalten. Bis bald in Donnersbachwald!

Allgemein: Badezimmer: 1; Baujahr: 1982; Etage: 2; Freistehendes Gebäude; Gesamtanzahl d. Stockwerke im Gebäude: 2; Grundstücksfläche: 1353 qm; Renovierungsjahr: 2015; Schlafzimmer: 1

Schlafmöglichkeiten: Anzahl Doppelbetten (1,80m Breite): 1

Wohnen: Bügeleisen; Doppelsofa; Safe; Satelliten-TV

Bad/WC: Dusche; Föhn; Toilette; Waschbecken

Kochen: Backofen; Ceranherd; Gefrierfach; Kaffeemaschine; Kühlschrank; Mikrowelle; Spülmaschine; Wasserkocher

Sonstiges: Anbieter wohnt auf dem Grundstück; Fitnessgeräte; Heizung; Keine Jugendgruppen; Kinderstuhl; Nichtraucherobjekt; W-Lan

Keine Jugendgruppen.


Nebenkosten:
Bettwäsche: inklusive
Endreinigung: 68,00 EUR (verpflichtend, müssen vor Ort bezahlt werden)
Energiekosten: inklusive
Handtücher: inklusive
Internet: inklusive
Kurtaxe: 2,50 EUR pro Person pro Tag (verpflichtend, müssen vor Ort bezahlt werden)
Sauna: 30,00 EUR (optional, müssen vor Ort bezahlt werden)

Gesamte Beschreibungweniger anzeigen

Ausstattung

Allgemein
  • Haustiere nicht erlaubt
  • Nichtraucher
  • Terrasse
  • Balkon
  • Heizung
Unterhaltung
  • Internet
  • Kabel/Sat
Küche
  • Backofen
  • Gefriermöglichkeit
  • Kühlschrank
  • Mikrowelle
  • Geschirrspüler
Bad/Sanitär
  • Haartrockner
  • Dusche
  • Badewanne/WC

Verfügbarkeit prüfen

Wählen Sie Ihren Reisezeitraum aus, um den Preis zu sehen!
>vorheriges Objekt
Jahresansicht
Jan 2026
Mo Di Mi Do Fr Sa So
      1 2 3 4
5 6 7 8 9 10 11
12 13 14 15 16 17 18
19 20 21 22 23 24 25
26 27 28 29 30 31  
             
Feb 2026
Mo Di Mi Do Fr Sa So
            1
2 3 4 5 6 7 8
9 10 11 12 13 14 15
16 17 18 19 20 21 22
23 24 25 26 27 28  
             
Mär 2026
Mo Di Mi Do Fr Sa So
            1
2 3 4 5 6 7 8
9 10 11 12 13 14 15
16 17 18 19 20 21 22
23 24 25 26 27 28 29
30 31          

Lage • Ferienwohnung Nr. 3 Gipfelkreuz

Donnersbachwald,88, Donnersbach, Steiermark
In der Umgebung
  • Entfernung Restaurant 300 m
  • Entfernung See 200 m
  • Nächster Flughafen (Entfernung) 250,0 km
  • Nächster Bahnhof (Entfernung) 25,0 km
  • Entfernung Stadt 1,0 km
  • Entfernung nächster Skilift/Bergbahn/Loipe 100 m
Reisende, die sich die Unterkunft Ferienwohnung Nr. 3 Gipfelkreuz angesehen haben, haben diese Unterkünfte gebucht
Merken
35 m²
Ferienwohnung
4 Pers.
2 Schlafz.
Donnersbach
Steiermark
Merken
68 m²
Bauernhof
6 Pers.
2 Schlafz.
Donnersbach
Steiermark
Ferienwohnungen Hohl - Ferienwohnungen Hohl .1
Merken
40 m²
Ferienwohnung
4 Pers.
Donnersbach
Steiermark
Merken
50 m²
Ferienwohnung
4 Pers.
1 Schlafz.
Donnersbach
Steiermark