Vorheriges Objekt Zurück zur Liste Nächstes Objekt
Ferienhaus

Tgèsa Alpina Müller, (Rueras/Sedrun).

Milez, Rueras, Graubünden - Tolle Lage - Karte anzeigen
4,9
Ausgezeichnet
basierend auf 4 Bewertungen
Personen 8
Schlafzimmer 2
Badezimmer 1
Wohnfläche 40 m²
Ferienhaus
Rueras
Objekt-Nr.:
Merken
Teilen

  • Grillmöglichkeit
  • Mikrowelle
  • Kamin/Ofen
  • Haustiere nicht erlaubt
  • Nichtraucher

Beschreibung

 
Tgèsa Alpina
Schöne Berghütte mitten im Skigebiet der Skiarena Andermatt-Sedrun auf 1800 M.ü.M bei der Mittelstation Milez. Freie Sicht über das Tujetschertal.
Im Winter nur mit der Sesselbahn erreichbar (auch für Nichtskifahrer). Im Sommer mit dem Auto zugänglich, Parkplatz vorhanden.
Im Winter mit unserer Tgèsa Alpina Parkkarte gebührenfreier Parkplatz bei der Talstation Dieni vorhanden.
 

 
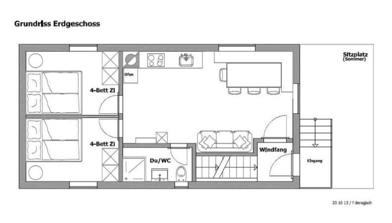
3.5 Zimmer-Berghütte mit heller Wohnküche, die ausgestattet ist mit einen grossen Esstisch und einen kleinen Sofa für gemütliche r Specksteinofen und eine Speicherheizung sorgen für angenehme Wärme.
Zwei Schlafzimmer: jedes Schlafzimmer mit 2 Etagenbetten für jeweils 4 Personen. Neues Badezimmer mit Dusche und WC. Im Keller befindet sich der Trocknungsraum mit Garderobe und Schuhheizung.
Küchenwäsche vorhanden und inbegriffen, Badwäsche auf Wunsch erhältlich (CHF 5.-/Person). Individuelle Aufenthaltsdauer auf Anfrage möglich. Nichtraucherhaus
Bodenbelag: Linoleum
 

Konditionen und Extras
Küchenwäsche vorhanden und inbegriffen, Badwäsche ist auf Wunsch erhältlich (CHF 5.-/Pers).
Individuelle Aufenthaltsdauer auf Anfrage beim Vermieter möglich.
 

Ausstattung
2 Schlafräume, Babyhochstuhl, Backofen, Fondue-Set, Garten, Grillmöglichkeit, Haustiere nicht erlaubt, Kachelofen, Kaffeemaschine, Kein Fernseher, Küche, Küchenwäsche, Kühlschrank, Mikrowelle, Nichtraucherzimmer-/wohnung, Parking, Raclette-Set, Radio, Tisch- und Küchenwäsche, Töpfe Pfannen Geschirr, Wasserkocher

Badezimmer
Anzahl Badezimmer: 1, Badewäsche vorhanden, Dusche: 1

Dienstleistungen
Fahrradabstellraum, Familienfreundlich, Geeignet für Gruppen, Haustiere nicht erlaubt, Parkplatz, Skikeller/-abstellraum

Freizeit-/Sportangebot des Gastgebers
Grillmöglichkeit, Schneeschuhwandern, Skitouren, Wanderwege

Kapazitäten
Anzahl FeWo

Lage
An Velo-/Bikeroute gelegen, Entfernung zum nächsten Bahnhof (in km): 1.5, Entfernung zum nächsten Skilift (in km): 0.1, Entfernung zum Natureisfeld (in km): 4.5, Entfernung zum See (in km): 5, Entfernung zur Loipe (in km): 2, Mit öffentlichen Verkehrsmitteln erreichbar: 0.1, Ortsrand, Ruhige Umgebung, Ski In / Ski Out

Stockwerk
Hochparterre

Unterkunftstyp
Ferienhaus, Maiensäss

Belegung
1-8 Personen
1-8 Erwachsene
0-7 Kinder (0-16 Jahr(e))

Gesamte Beschreibungweniger anzeigen

Ausstattung

Allgemein
  • Grillmöglichkeit
  • Haustiere nicht erlaubt
  • Nichtraucher
  • Kamin/Ofen
Unterhaltung
  • Radio
Küche
  • Backofen
  • Kaffeemaschine (Filter)
  • Kühlschrank
  • Mikrowelle
Bad/Sanitär
  • Badewanne/WC

Verfügbarkeit prüfen

Wählen Sie Ihren Reisezeitraum aus, um den Preis zu sehen!
>vorheriges Objekt
Jahresansicht
Feb 2026
Mo Di Mi Do Fr Sa So
            1
2 3 4 5 6 7 8
9 10 11 12 13 14 15
16 17 18 19 20 21 22
23 24 25 26 27 28  
             
Mär 2026
Mo Di Mi Do Fr Sa So
            1
2 3 4 5 6 7 8
9 10 11 12 13 14 15
16 17 18 19 20 21 22
23 24 25 26 27 28 29
30 31          
Apr 2026
Mo Di Mi Do Fr Sa So
    1 2 3 4 5
6 7 8 9 10 11 12
13 14 15 16 17 18 19
20 21 22 23 24 25 26
27 28 29 30      
             

Lage • Tgèsa Alpina Müller, (Rueras/Sedrun).

Milez, Rueras, Graubünden
In der Umgebung
  • Entfernung See 5,0 km
  • Nächster Bahnhof (Entfernung) 1,5 km
Reisende, die sich die Unterkunft Tgèsa Alpina Müller, (Rueras/Sedrun). angesehen haben, haben diese Unterkünfte gebucht
Merken
110 m²
Ferienwohnung
9 Pers.
4 Schlafz.
Rueras
Graubünden
4,9 Ausgezeichnet 2 Bewertungen
Merken
130 m²
Ferienhaus
12 Pers.
6 Schlafz.
Rueras
Graubünden
4,7 Ausgezeichnet 4 Bewertungen
Merken
40 m²
Ferienhaus
8 Pers.
2 Schlafz.
Rueras
Graubünden
4,9 Ausgezeichnet 4 Bewertungen
Merken
130 m²
Ferienhaus
13 Pers.
5 Schlafz.
Rueras
Graubünden
4,8 Ausgezeichnet 11 Bewertungen